新房
新房
二手
出租
地产资讯
新房资讯
数据中心
手机找房
地图找房
登陆
注册
收藏
0352房网首页
新房频道
大同楼盘
商铺楼盘
写字楼楼盘
地图找房
楼盘动态
工程进度
楼盘快讯
最新房价
看房日记
购房指南
您的位置:
0352房网
>
大同楼盘
> 星港瀛湖观祉
星港瀛湖观祉
更新时间:2022年08月04日
人浏览
条评论
普通住宅
毛坯
旅游地产
宜居生态
低密居所
公园地产
楼盘首页
楼盘详情
楼盘动态
历史价格
图库
户型图
楼盘点评
问答
看房
团购
开盘时间:
待定
交房时间:
待定(具体交房时间以合同为准)
许 可 证:
开 发 商:
大同星源房地产开发有限公司
参考价格:
售价待定
楼盘地址:
大同市平城区恒安街南侧
查看地图
主力户型:
全部户型
400 876 0352 转 0246
联系时,请告之在“0352房网”上看到,谢谢!
扫码一键拨号
更多详情信息>>
收藏
对比
最新动态
更多>>
[楼盘快讯]
大同御东新盘星港瀛湖观祉 建设工程规划许可
2022-03-25
390
[楼盘快讯]
大同御东新盘规划 星港瀛湖观祉许可现已公示
2022-01-21
684
暂无相关视频...
效果图
实景图
区位图
视频
楼盘印象
添加印象
户型图
更多>>
楼盘图库
效果图(2)
|
区位图(2)
|
规划图(3)
|
更多>>
项目区位图
建设工程规划许可证
星港瀛湖观祉区位图
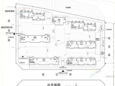
星港瀛湖观祉平面图
星港瀛湖观祉效果图
楼盘订阅
(
10
人报名看房,我们将为您保密个人信息)
报名看房
申请优惠
开盘通知
最新动态
发送短信
更多>>
楼盘点评
综合评分
100
/100
表情
提交评论
点击加载更多
热门楼盘
东方家园二期
7800
元/m²
对比
美都·新筑
6000
元/m²
对比
碧水云天·御源府
7580
元/m²
对比
兴云揽御
8000
元/m²
对比
铂悦城
9600
元/m²
对比
睿和云端
7800
元/m²
对比
和汇·花鹿湾二期
7600
元/m²
对比
海棠郡
5850
元/m²
对比
周边楼盘
央玺
10000
元/m²
对比
京华九璋
待定
对比
东方柏翠
待定
对比
茉莉禧樾
8000
元/m²
对比
文瀛·水岸
5300
元/m²
对比
恒安壹号院
待定
对比
保利和光屿湖
12000
元/m²
对比
文瀛·桃花源
待定
对比
同价位楼盘
万金公馆
待定
市区
京华九璋
待定
御东
东方柏翠
待定
御东
御锦文源
待定
云冈区
九禧林溪郡
待定
云冈区
恒安壹号院
待定
御东
文瀛·桃花源
待定
御东
东南邑·和阳里
待定
市区
免责声明:
本站旨在为广大用户提供更多无偿信息服务,不声明或保证所提供信息的准确性和完整性。页面所载内容及数据仅供用户参考和借鉴,最终以开发商实际公示为准,用户因参照本站信息进行相关交易所造成的任何后果与本站无关。如楼盘信息有误,您可以投诉或拨打举报电话:0352-7915556
手机微信扫描,安全登录
使用帮助
重新加载
QQ登录
微博登录
忘记密码