新房
新房
二手
出租
地产资讯
新房资讯
数据中心
手机找房
地图找房
登陆
注册
收藏
0352房网首页
二手房源
出租房源
经纪人
经纪公司
大同小区
二手地图
市场政策
二手房资讯
购房知识
您的位置:
0352房网
>
二手房
>
市区
>
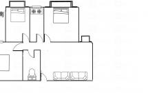
【大成荣尊堡】大成荣尊堡 2室1厅1卫 88㎡ 大红本
发布时间:
2021-10-14 17:26:35( 48个月前 更新)
房源编号:
769234
举报虚假
收藏房源
购买意向
发送手机
<
>
18636234638
谢女士
房源概况
房源描述
小区信息
地图
总价:
59
单价:
6705元/m²
参考:
首付:
万 月供:
元/月(20年)
贷款计算器
户型:
2室1厅1卫
面积:
88平米
装修:
高档装修
类别:
住宅
楼层:
第12层/总31层
朝向:
南
年代:
2018 年
地址:
小北门
房源描述
房子位置交通便利 精装修 婚房 一天未住
查看详情>>
小区信息
小区名称:
大成荣尊堡
二手房
18
套
出租房
2
套
区域:
市区
物业公司:
物业类型:
普通住宅
物业费用:
总建面积:
小区户数:
容积率:
出租率:
市区
停车位:
绿化率:
本月均价:
4253.33元/平米
最高价:
41.5万元
最低价:
26万元
小区地址:
小北门
小区价格走势:
地图
个人房源
18636234638
姓名:
谢女士
更多>>
同区域
御馨花都 4室2厅2卫 178㎡
112
4室2厅/178m²
60万
和汇百合湾 3室1厅1卫 102㎡ 南北通透采光好 包换名字
46万
仁恒园 2室2厅1卫 80㎡
63万
六中凤凰国际 2室1厅1卫 126㎡
37万
包换名 三中 精装修 2居 万城华府三期 2室1厅1卫 63㎡
62万
超值特别推荐盛泽花园小区
46万
火车站玄冬花园115三层三室二厅
60万
御西景苑
105万
华阳星月城 3室2厅2卫 133㎡,三中十四校豪华装修小洋房
66万
美好新里程 3室2厅1卫 106㎡,房本满二
更多>>
同价位
和汇百合湾 3室1厅1卫 102㎡ 南北通透采光好 包换名字
60
3室1厅/102m²
63万
六中凤凰国际 2室1厅1卫 126㎡
62万
超值特别推荐盛泽花园小区
60万
御西景苑
62万
绿地璀璨天城 95平 南北通透 两居室 大红本支持任何贷款
63万
万城华府一期 2室1厅1卫 87㎡
59万
南北通透,户型方正,中医院附近,房产所附近
55万
大秦佳苑 3室2厅2卫 151㎡
63万
华田苑府城 2室2厅1卫 98㎡
63万
月星国际 2室2厅1卫 92㎡
更多>>
问答
该小区其他
大成荣尊堡 3室1厅1卫 98.25㎡
3室1厅/98.25m² -
63万
大成荣尊堡 2室1厅1卫 85㎡地理位置成熟 钥匙领了 包公正
2室1厅/85m² -
37万
大成荣尊堡 2室1厅1卫 98.25㎡房本刚下来,家具家电都带
2室1厅/98.25m² -
63万
大成荣尊堡 3室1厅1卫 112㎡ 2层 采光没有任何影响
3室1厅/112m² -
58万
大成荣尊堡 2室2厅1卫 86.7㎡
2室2厅/86.7m² -
61万
更多>>
猜你想浏览的新房
[御东]华鸿·东方家园二期
均价:
7800元/m²
动态
-
相册
[御东]兴云揽御
均价:
8000元/m²
动态
-
相册
[御东]睿和云端
均价:
7800元/m²
动态
-
相册
免责声明:
本站所刊载的所有的房源信息、资料及图片均由网站用户提供,其真实性、合法性由信息发布人负责,本网站不声明或保证其内容之正确性或可靠性。所有信息以经纪公司或业主个人提供为准,请谨慎核查,本网站不承担任何责任。
反馈类型
中介冒充房东
联系方式虚假
房源已成交
非房源信息
其它错误信息
大成荣尊堡 2室1厅1卫 88㎡ 大红本,地址:小北门,联系电话:18636234638,联系人:谢女士【0352房网】
手机微信扫描,安全登录
使用帮助
重新加载
QQ登录
微博登录
忘记密码