摘要:盼望着,盼望着,碧水云天·御花园的户型图终于与广大购房者见面了!98-180平米臻品户型,将为广大购房者带来前所未有人居新体验!快来随着小编一起揭开户型的庐山真面目吧!
咨询电话:400 876 0352 转 0165

碧水云天·御花园鸟瞰图
作为御东核心地段上的智慧社区,碧水云天·御花园以高品质小高层与花园洋房为主,周围高端小区环绕,配套醇熟。项目共筑20栋高楼,其中规划3栋高层住宅,以满足不同圈层购房者的置业需求。今天小编首先要为大家带来的,就是高层住宅98㎡与128㎡两款经典户型,想要以高层住宅价格,跻身高端住宅社区的朋友们,是时候抓紧机会了。
碧水云天·御花园3栋高层住宅位于整个项目的最北侧,与南侧小高层间距较大,给与业主视野开阔、采光良好的居住空间。而身居高层的业主们,向南远眺,御花园靓丽美景与方特欢乐世界即可尽收眼底。

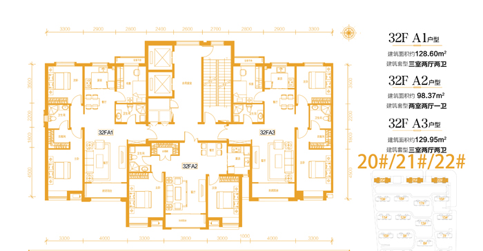
碧水云天·御花园高层住宅平层图
碧水云天·御花园高层住宅为两梯三户,A1与A3为东西对称户型,A2为全阳户型。其中A1户型为128㎡舒适三居室,入户玄关,增加业主生活私密性,客厅空间开阔,大尺寸阳台让阳光满室,双卫设计,让生活更加舒适便捷;主卧设有衣帽间,满足女主人需求的同时,让更衣、洗漱一气呵成。
A2户型为98㎡精致两居室,客厅空间开阔,会客、娱乐不拥挤;餐厨一体,布局合理,符合日常备餐习惯,美味无需等待;玄关处设衣帽间,衣物有处安放,收纳更加方便;全阳格局,让生活时刻充满阳光,幸福生活,从这里开始。
平凡之中,缔造经典,碧水云天·御花园高层住宅两款经典户型,突破传统格局,从舒适性、实用性的角度入手,为购房者带来不同以往的居住体验。看完了这两款户型,是不是已经有不少网友心动了?碧水云天·御花园目前正在建设当中,其中开发商斥巨资打造的步入式景观大堂,作为整体项目的一大亮点,也正在加紧施工当中,前期将以售楼部的形式与广大购房者见面。
更多臻品户型,小编会一一为大家揭晓,敬请期待!