-
碧水云天·御河苑
销售电话:400 876 0352 转 0165
开盘日期:2017年10月16日
楼盘地址:大同御东新区永和路与兴云街交汇处西北角煤气公司北侧
售楼地址:大同御东新区御河东路与兴云街交汇处东南角碧水云天接待中心
御东 现房售完 普通住宅教育地产
- 最新动态
- “家”期已至 碧水云天·御河苑邀您幸福回家 [2018-11-13] 碧水云天·新河湾&御河苑交房在即 邀您前来品鉴 [2018-07-21] 5680元/㎡ 碧水云天·御河苑清盘活动持续升温 [2018-06-07]
- 楼盘详情
-
开盘时间2017年10月16日交房时间2018年11月13日(具体交房时间以合同为准)付款方式支持一次性付款、商贷和公积金;一次性付款优惠三个点,商贷、公积金优惠一个点。物业类型普通住宅建筑类别小高层 高层装修状况毛坯建筑面积141826㎡占地面积47616㎡住户数1124户得房率80%容积率2.98绿化率35%停车位1418户型区间建面约待定楼栋数量待定周边学校小学:北岳小学 初中:北师大附中交通路线市区坐63路到曹夫楼社区公交站下车,往西走到十字路口西北角大同市煤运公司北面即到; 市区坐60路到马家堡社区公交站下车路西即到;开发商大同市嘉达置地实业有限公司预售许可(2017)晋商房预售同字第48号物业公司大同云泉物业管理公司物业费2元/㎡/月(含电梯费)楼盘介绍
碧水云天·御河苑由大同市嘉达置地实业有限公司开发,项目位于御东新区永和路北岳小学南面,项目用地面积为47616㎡,建筑面积141826㎡。项目共1124户,容积率2.98,绿化率35%,得房率80%。户型从建面约88-158㎡之间不等。项目共建8栋楼,2栋小高层和6栋高层住宅。
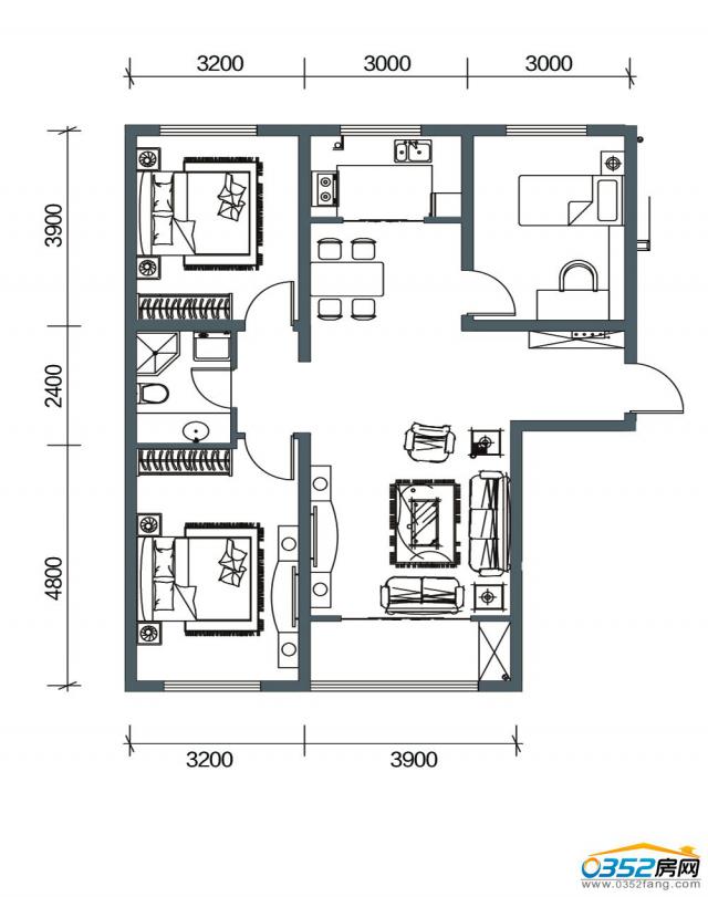
- 主力户型
- 视频看房
-
- 楼盘相册
- 楼盘点评
-
游客60个月前
-
游客75个月前
-
游客76个月前
展开