-
大同府·观和院子三期
销售电话:400 876 0352 转 0257
开盘日期:待定
售楼地址:大同市云州区南环东路大同府
御东 在售期房 别墅旅游地产宜居生态低密居所
- 最新动态
- 大同府·观和院子三期部分信息新鲜出炉! [2021-01-17]
- 楼盘详情
-
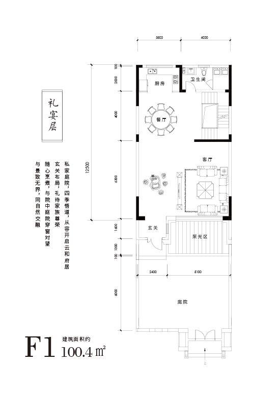
开盘时间待定交房时间2021年9月30日(具体交房时间以合同为准)付款方式支持一次性付款、按揭!物业类型别墅建筑类别低层装修状况毛坯建筑面积60223.46㎡占地面积39448.00㎡住户数217得房率待定容积率1.07绿化率37.2%停车位待定户型区间建面约256㎡楼栋数量19栋周边学校大成双语学校交通路线从御东新区万达广场出发自驾车沿南环东路直行至樊家庄园,沿着302线公路行驶2.6公里即到!开发商大同市同庆祥房地产开发有限责任公司预售许可(2020)晋商房预售云州字第004号物业公司大同市吉祥鸟物业管理有限公司物业费待定楼盘介绍
大同府·观和院子三期项目位于大同市云州区南环路东延(机场路),由大同市同庆祥房地产开发有限责任公司开发建设,总占地面积为39448.00㎡,总建筑面积为60223.46㎡ ,绿化率37.2%,容积率1.07。
- 主力户型
- 楼盘点评
-
感觉买不起游客41个月前
-
挺不错游客42个月前
-
好贵喔?游客43个月前
展开


