-
古城新建四合院!一起看看建设项目规划公示吧
2022-05-16 17:45:45 416 李亚婷 0 -
摘要:大同市又新增一四合院项目,此项目是铂蓝五龙巷项目开发商又一新作,一起来看看吧!

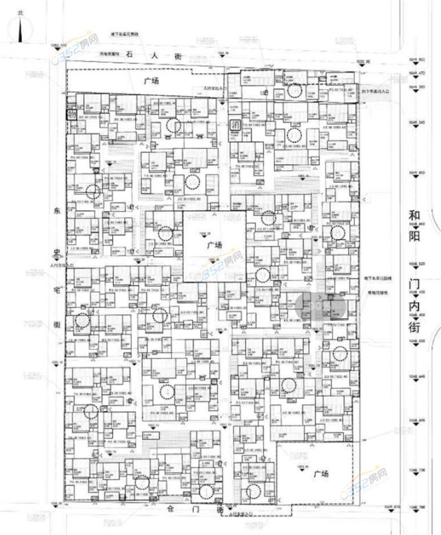
项目名称:大同古城东南隅(C3/C4)地块项目
建设单位:华夏江鸿(大同)文化旅游开发有限公司
设计单位:重庆联创建筑规划设计有限公司
项目位置:和阳门内街西侧、仓门街北侧
占地面积:26426.21㎡
建筑面积:44355.30㎡
容积率:0.70
建筑密度:52%
停车位:187个
绿地率:5.02%


项目效果图

项目总平图
以上就是大同新增四合院项目的全部内容,华夏江鸿深耕大同数十载,从铂蓝原著到铂蓝五龙巷,铂蓝五龙巷作为大同为数不多的四合院,品质肉眼可见,期待华夏江鸿能为大同人继续带来更好的“作品”!
- 相关资讯
- 资讯排行
