-
商业+酒店!大同西京公馆建设规划许可公示
2023-03-09 11:54:36 391 RUI 0 -
摘要:大同御东新区新增商业楼盘—西京公馆,建设项目规划许可已公示,涵盖一栋酒店和一栋商业楼,具体规划如下。
咨询电话:400 876 0352 转 0000
项目名称:西京公馆
建设单位:大同市正源置业有限责任公司
设计单位:中外建工程设计与顾问有限公司
项目位置:西京府小区南侧、华唐城项目西侧

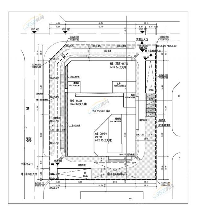
规划图

总平面图
规划用地面积:5908.73平方米
总建筑面积:41595.88平方米
地上建筑面积:28723.64平方米
地下建筑面积:12872.24平方米
容积率:4.87
建筑密度:48.86%
停车位:683辆
地上停车位:6辆
地下停车位:677辆
绿地率:20.01%


效果图
以上就是西京公馆的项目建设规划了!目前,西京公馆尚未建设售楼部,其余信息暂未释放,0352房网将持续跟踪并报道,敬请关注!
- 相关楼盘
-
西京公馆
待定
大同市御东天和路与兴和街交汇处东南角
御东商铺待售,期房
- 西京公馆 相关资讯
- 相关资讯
- 资讯排行
