新房
新房
二手
出租
地产资讯
新房资讯
数据中心
手机找房
地图找房
登陆
注册
收藏
0352房网首页
新房频道
大同楼盘
商铺楼盘
写字楼楼盘
地图找房
楼盘动态
工程进度
楼盘快讯
最新房价
看房日记
购房指南
您的位置:
0352房网
>
大同楼盘
> 观城壹号
观城壹号
更新时间:2023年07月10日
人浏览
条评论
普通住宅
毛坯
旅游地产
宜居生态
公园地产
楼盘首页
楼盘详情
楼盘动态
历史价格
图库
户型图
楼盘点评
问答
看房
团购
开盘时间:
2021年
交房时间:
2023年6月30日
许 可 证:
(2021)晋商房预售同字第20号
开 发 商:
大同市同顺房地产开发有限公司
参考价格:
8000
元/㎡
(待定)
楼盘地址:
大同市平城街与魏都大道交汇处东北角
查看地图
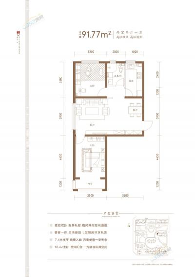
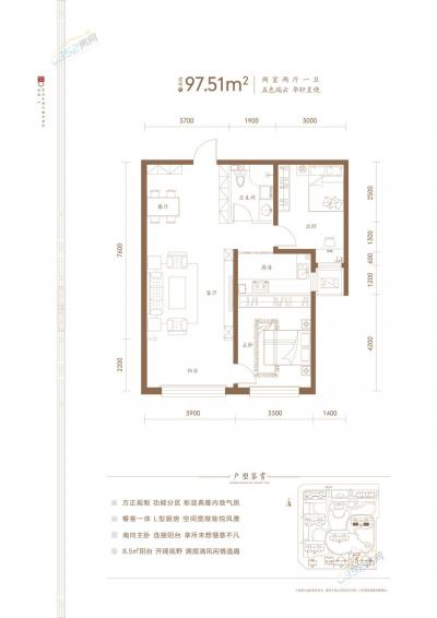
主力户型:
2室(建面约97.51m²)
2室(建面约91.77m²)
3室(建面约136.55m²)
全部户型
400 876 0352
0306
找售楼处
0308
找置业顾问
联系时,请告之在“0352房网”上看到,谢谢!
扫码一键拨号
更多详情信息>>
收藏
对比
最新动态
更多>>
[工程进度]
部分楼栋已交付 观城壹号7月实景整理完毕!
2023-07-17
182
[工程进度]
观城壹号围挡基本拆除 外围地面正在铺设收尾
2023-06-25
181
[工程进度]
外立面收尾园林铺设 观城壹号5月施工动态!
2023-05-24
101
[工程进度]
观城壹号外立面建设收尾 预计6月正式交付!
2023-04-27
169
[工程进度]
大同观城壹号3月实景 交房时间延至2023年6月
2023-03-04
185
暂无相关视频...
效果图
实景图
区位图
视频
楼盘印象
添加印象
户型图
2室(2)
|
3室(5)
|
更多>>
普通住宅 2室1厅1卫
8B户型·建面约97.51M²
普通住宅 2室1厅1卫
8A户型·建面约91.77M²
普通住宅 3室2厅2卫
倬云·建面约136.55M²
普通住宅 3室2厅1卫
5/6A户型·建面约100.26M²
普通住宅 3室2厅3卫
皓升·建面约170M²
楼盘图库
效果图(6)
|
实景图(44)
|
区位图(2)
|
更多>>
2023.8.15日实景图
2023.7.16北侧实景
2023.7.16西大门实景
2023.7.16西大门实景
2023.6.25部分围挡拆除
楼盘视频
观城壹号沙盘讲解
观城壹号视频讲解
楼盘订阅
(
14
人报名看房,我们将为您保密个人信息)
报名看房
申请优惠
开盘通知
最新动态
发送短信
更多>>
楼盘点评
综合评分
100
/100
表情
提交评论
点击加载更多
热门楼盘
东方家园二期
7800
元/m²
对比
美都·新筑
6000
元/m²
对比
碧水云天·御源府
7580
元/m²
对比
兴云揽御
8000
元/m²
对比
铂悦城
9600
元/m²
对比
睿和云端
7800
元/m²
对比
和汇·花鹿湾二期
7600
元/m²
对比
海棠郡
5850
元/m²
对比
周边楼盘
万金公馆
待定
对比
汇天碧水芳园
5500
元/m²
对比
天锐华城
6300
元/m²
对比
美都·新筑
6000
元/m²
对比
东南邑·和阳里
待定
对比
龙泉御府
待定
对比
碧水云天·御源府
7580
元/m²
对比
上华琚·芳园
6700
元/m²
对比
同价位楼盘
茉莉禧樾
8000
元/m²
御东
茉莉花园(茉莉公馆)
7800
元/m²
御东
华鸿·东方家园二期
7800
元/m²
御东
碧水云天·御源府
7580
元/m²
市区
星港御兰亭
7800
元/m²
御东
和汇·花鹿湾二期
7600
元/m²
御东
学林壹号
8300
元/m²
市区
兴云揽御上院
8000
元/m²
御东
参考月供
计算条件
选择户型:
2室1厅97.51平米
2室1厅91.77平米
3室2厅136.55平米
3室2厅100.26平米
3室2厅170平米
3室2厅143.82平米
3室2厅127.63平米
估算总价:
60000
按揭成数:
9成
8成
7成
6成
5成
4成
3成
2成
还款年限:
1年(12期)
2年(24期)
3年(36期)
4年(48期)
5年(60期)
6年(72期)
7年(84期)
8年(96期)
9年(108期)
10年(120期)
11年(132期)
12年(144期)
13年(156期)
14年(168期)
15年(180期)
16年(192期)
17年(204期)
18年(216期)
19年(228期)
20年(240期)
25年(300期)
30年(360期)
贷款利率:
2021年8月1日利率上限(1.1倍)
2021年8月1日利率上限(1.2倍)
2021年8月1日利率上限(1.3倍)
2021年8月1日基准利率
2021年8月1日利率下限(7折)
2021年8月1日利率下限(85折)
%
计算结果
月均还款:
参考首付:
贷款总额:
还贷总额:
支付利息:
备注:据商业贷款等额本息计算,结果仅供参考,更多计算方式进入
贷款计算器>>
免责声明:
本站旨在为广大用户提供更多无偿信息服务,不声明或保证所提供信息的准确性和完整性。页面所载内容及数据仅供用户参考和借鉴,最终以开发商实际公示为准,用户因参照本站信息进行相关交易所造成的任何后果与本站无关。如楼盘信息有误,您可以投诉或拨打举报电话:0352-7915556
手机微信扫描,安全登录
使用帮助
重新加载
QQ登录
微博登录
忘记密码