新房
新房
二手
出租
地产资讯
新房资讯
数据中心
手机找房
地图找房
登陆
注册
收藏
0352房网首页
新房频道
大同楼盘
商铺楼盘
写字楼楼盘
地图找房
楼盘动态
工程进度
楼盘快讯
最新房价
看房日记
购房指南
您的位置:
0352房网
>
大同楼盘
> 观澜湾
观澜湾
更新时间:2022年09月16日
人浏览
条评论
普通住宅
毛坯
低密居所
高铁楼盘
楼盘首页
楼盘详情
楼盘动态
历史价格
图库
户型图
楼盘点评
问答
看房
团购
开盘时间:
2022年
交房时间:
2021年年底(具体交房时间以合同为准)
许 可 证:
(2022)晋商房预售同经开区字第1号
开 发 商:
大同东腾房地产开发有限公司
参考价格:
5750
元/㎡
楼盘地址:
大同市南环路与柳莺路交汇处东南角
查看地图
主力户型:
全部户型
400 876 0352 转 0334
联系时,请告之在“0352房网”上看到,谢谢!
扫码一键拨号
更多详情信息>>
收藏
对比
最新动态
更多>>
[楼盘快讯]
东腾观澜湾项目二期最新工程进度新鲜出炉!
2023-04-25
166
[工程进度]
大同御东观澜湾二期项目主体建设基本完毕
2023-03-21
126
[楼盘快讯]
观澜湾一期实景现房出售 户型建面约85-136㎡
2022-12-17
124
[楼盘快讯]
观澜湾二期部分楼栋已封顶 正在进行窗体安装
2022-09-30
129
[楼盘快讯]
观澜湾二期部分楼栋已封顶 正在进行窗体安装
2022-08-30
109
暂无相关视频...
效果图
实景图
区位图
视频
楼盘印象
添加印象
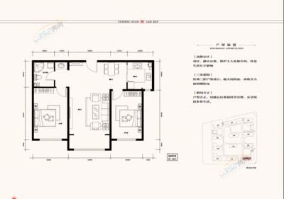
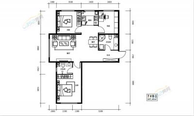
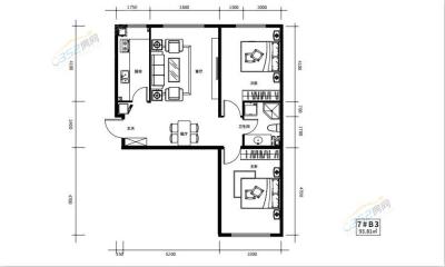
户型图
0室(1)
|
2室(2)
|
3室(5)
|
更多>>
普通住宅 2室2厅1卫
7#B2户型·建面约92.64M²
普通住宅 2室2厅1卫
7#B3户型·建面约93.81M²
普通住宅 3室2厅1卫
8#F2户型·建面约97.12M²
普通住宅 3室2厅2卫
7#B1户型·建面约107.45M²
普通住宅 3室2厅1卫
8#F1户型·建面约118.73M²
楼盘图库
效果图(4)
|
实景图(22)
|
区位图(2)
|
配套图(5)
|
更多>>
2023.06.17实景图
2023.06.17实景图
2023.05.16实景图
2023.4.18观澜湾二期实景图
2023.3.15观澜湾二期实景图
楼盘订阅
(
10
人报名看房,我们将为您保密个人信息)
报名看房
申请优惠
开盘通知
最新动态
发送短信
更多>>
楼盘点评
综合评分
100
/100
表情
提交评论
点击加载更多
热门楼盘
东方家园二期
7800
元/m²
对比
美都·新筑
6000
元/m²
对比
碧水云天·御源府
7580
元/m²
对比
兴云揽御
8000
元/m²
对比
铂悦城
9600
元/m²
对比
睿和云端
7800
元/m²
对比
和汇·花鹿湾二期
7600
元/m²
对比
海棠郡
5850
元/m²
对比
周边楼盘
央玺
10000
元/m²
对比
京华九璋
待定
对比
东方柏翠
待定
对比
茉莉禧樾
8000
元/m²
对比
文瀛·水岸
5300
元/m²
对比
恒安壹号院
待定
对比
保利和光屿湖
12000
元/m²
对比
文瀛·桃花源
待定
对比
同价位楼盘
汇天碧水芳园
5500
元/m²
市区
文瀛·水岸
5300
元/m²
御东
美都·新筑
6000
元/m²
市区
海棠郡
5850
元/m²
市区
前进新苑·芳华悦
5700
元/m²
市区
富力·柒玺
5500
元/m²
御东
武定雅居
6000
元/m²
市区
观澜华府二期
5700
元/m²
市区
免责声明:
本站旨在为广大用户提供更多无偿信息服务,不声明或保证所提供信息的准确性和完整性。页面所载内容及数据仅供用户参考和借鉴,最终以开发商实际公示为准,用户因参照本站信息进行相关交易所造成的任何后果与本站无关。如楼盘信息有误,您可以投诉或拨打举报电话:0352-7915556
手机微信扫描,安全登录
使用帮助
重新加载
QQ登录
微博登录
忘记密码