大同同泉路糖厂立交改建 工程正式开始施工!
发布时间:2022-04-14 来源:北京市政集团三处大同项目部 编辑:郑倩
手机看文章
摘要:近日,北京市政集团三处大同分公司成功中标大同市同泉路糖厂立交改建工程,为期270天的危桥改建工程正式开工,详情如下。
工程概况
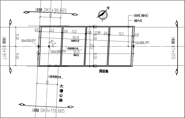
大同市同泉路糖厂立交桥改建工程,属于危桥改建工程,路线总长98米,工程地点位于同泉路跨大塘公路处,新建结构形式为箱涵结构。

实景图
工程内容
旧桥拆除工程、新建箱涵工程、附属工程、排水工程等。
开工日期:2022年4月7日
竣工日期:2023年1月1日
工程计划工期:270天

施工图
该道路的建成将解决现状糖厂立交桥的通行安全隐患,保障同泉路的正常通行和大塘路远期扩宽规划,更有助于沟通大同平城区与云冈区之间的交通联系!