手机看文章
摘要:本周0352房网·壹周楼市(2021.7.12.-2021.7.18),从楼市动态、工程进度、城建规划、土地市场等方面,为大家网罗过去一周的大同楼市热点!
一、楼市动态

实景图
7月17日,省内多名建筑专家学习参观瑞湖·云山府。

现场图
7月17日,铂蓝五龙巷二期珑吟示范区开放。

现场图
7月17日,保利于南城墙广场举办品牌发布会。

现场图
7月17日,五州帝景·学府里6#、7#双楼栋封顶。

实景图
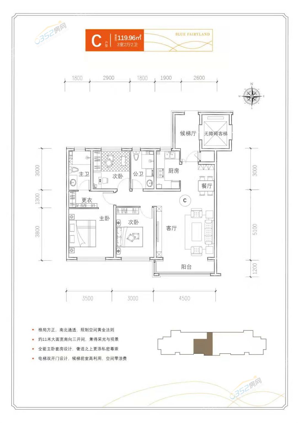
7月18日,天香·蓝郡户型图释放,项目开启认筹。

户型图
二、400来电排行
400电话来电量排名:
开源·金懋府
文瀛御龙庭
文兴首席·竹里
前进新苑·芳华悦
伯益公园府
以上五个楼盘是上周400来电量的前五名楼盘。开源·金懋府建设正酣,进度喜人,网友关注较高,来电量排行第一;文瀛御龙庭正式开售,来电量排行第二;文兴首席·竹里正式开售,来电量排行第三;前进新苑·芳华悦在城西楼盘中建设进度较快,网友较为关注,来电量排行第四;伯益公园府近同煤快线,来电量排行第五。
三、工程进度
截止至7月13日,恒大悦府一期部分楼栋正在进行外立面施工,二期北侧部分楼栋已封顶,其余楼栋最高建至21层左右。


实景图
截止至7月13日,泰和芮府北侧楼栋已封顶,二次结构施工中。

实景图
截止至7月13日,九如花园窗体安装中,小区东大门施工中。

实景图
四、城建规划
内容:本次云冈区拟征收地块位于北同蒲铁路东侧,涉及云冈区西韩岭乡东韩岭村、东肖河村、小太村,口泉乡落里湾村2个乡镇4个行政村,总面积约66.2471公顷。

地块大致位置
总面积超1000亩!大同云州区将迎来大规模征地
内容:总面积超1000亩,大同云州区倍加造镇等六宗地块即将迎来土地征收,用作公共管理与公共服务用地、居住用地、加油站用地等,具体内容如下。

拟征收土地情况一览

大致位置示意图
五、全国楼市
为何限高? 专家:高楼背后的“代价”不容忽视
国家发展改革委日前发布的《关于加强基础设施建设项目管理 确保工程安全质量的通知》明确提出,严格限制新建250米以上建筑,确需建设的,要结合消防等专题论证进行建筑方案审查,并报住房城乡建设部备案;不得新建500米以上超高层建筑。
7月13日,国务院新闻办公室举办2021年上半年金融统计数据新闻发布会,上游新闻记者从发布会上获悉,2021年上半年进一步完善了房地产金融调控机制,未来央行将继续围绕稳地价、稳房价、稳预期,构建房地产金融调控长效机制。
易居研究院智库中心7月13日发布最新数据显示,2021年上半年,北京新建商品住宅成交面积为476万平方米,同比增长123%;二手住宅成交套数为110597套,同比增长65%。