大同操场城街新增便民市场 建设规划新鲜出炉
发布时间:2019-08-03 来源:大同市规划和自然资源局 编辑:李亚婷
手机看文章
摘要:为加强建设工程的监督管理、维护社会公众利益。实施阳光规划,根据城乡规划法律法规的有关规定,现将拟批准的“大同市操场城街便民市场项目”规划审批情况予以公示,具体内容如下:
项目名称:大同市操场城街便民市场项目
建设单位:大同市上晋商贸有限公司
设计单位:广州市弘基市政建筑设计院有限公司
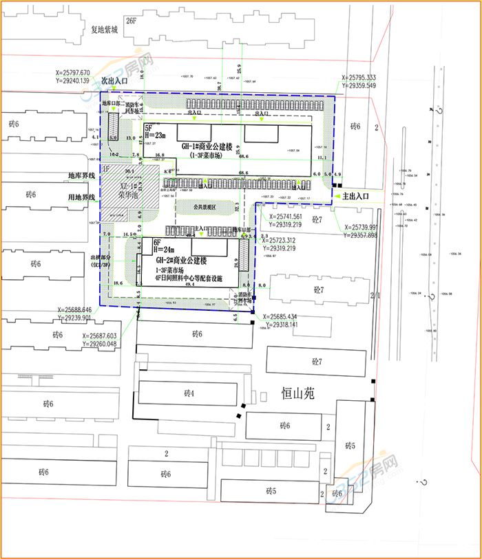
项目位置:大同市操场城街109号地块

操场城街便民市场规划总平面布置图

地块位置图

规划详情图
建设便民市场对于周边小区的居民们可谓一大幸事,出门采买更加方便快捷,再也不用下班跑大老远去买菜啦!真可谓是城市规划好,下班回家早啊!随着城市各方面配套日益完善,大同市民们的生活幸福指数也将越来越高!