大同市国际会展中心建设项目规划已公示!
发布时间:2019-08-27 来源:大同规划和自然资源局 编辑:Rui
手机看文章
摘要:2019年8月27日,大同市规划和自然资源局公示大同市国际会展中心建设项目规划许可,快来一睹为快吧!
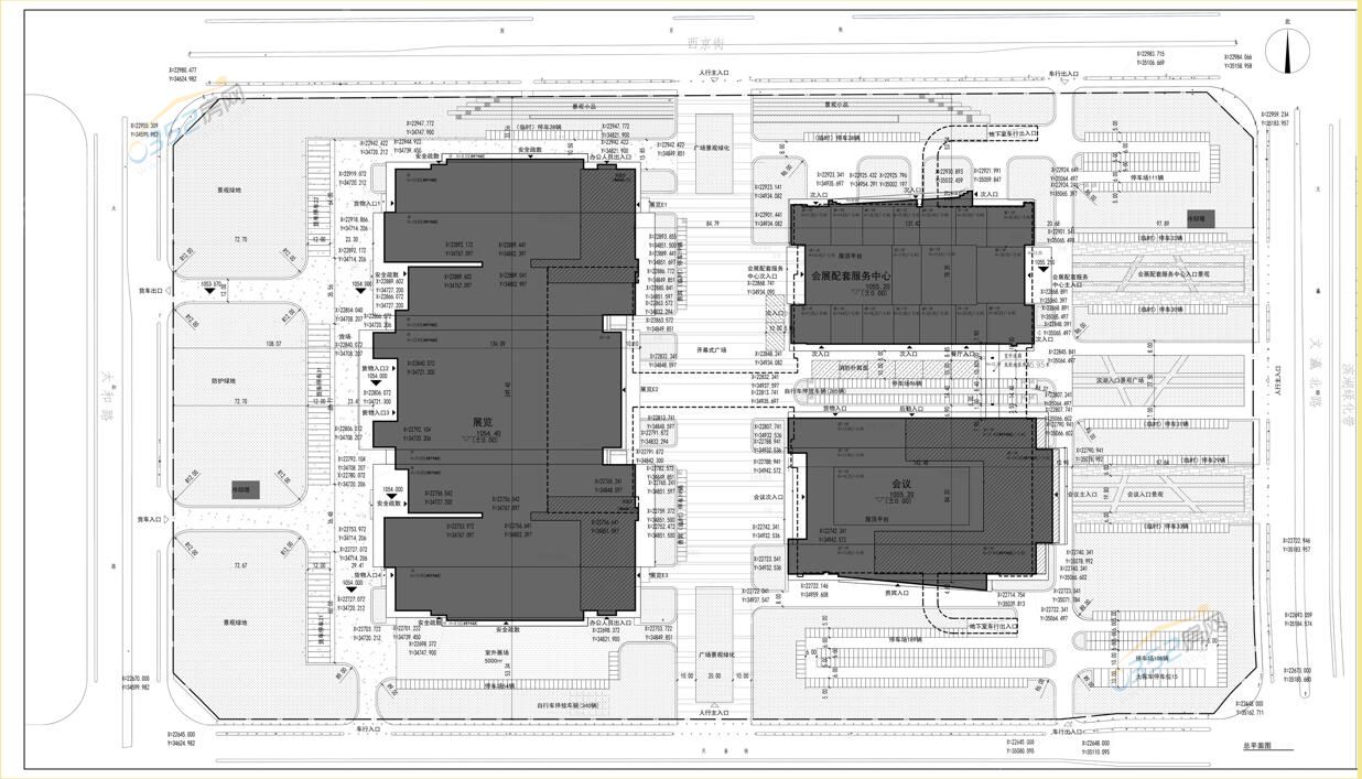
项目名称:大同市国际会展中心项目
建设单位:大同市市政建设发展有限公司
设计单位:中国建筑设计研究院有限公司
项目位置:大同市西京街南侧地块
用地面积:195539㎡
建筑面积:129915㎡
建筑密度:26.9%
容积率:0.49
绿地率:35%
停车位:1299
以下是大同市国际会展中心项目总平面布置图和控制性详细规划:


控制性详细规划

总平面布置图
以上就是大同市国际会展中心建设项目的具体规划!