大同市平城区第十三小学校新建项目规划出炉啦
发布时间:2021-03-19 来源:大同政府网 编辑:谢明亮
手机看文章
摘要:号外号外!大同将新建平城区第十三小学校,目前建设项目规划许可公示已出,详情快来了解一下吧!
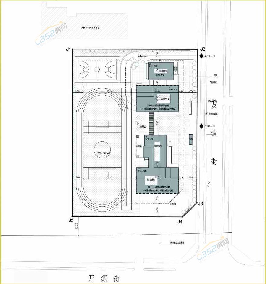
大同市平城区第十三小学校新建项目位于大同市开源街北侧、友谊街西侧,由清华大学建筑设计研究院有限公司规划设计,项目总占地面积10984.17㎡,总建筑面积10765.09㎡,其中包括综合楼、办公楼、教学楼等,项目容积率0.74,绿地率35%,建筑密度17.5%,机动车停车位40辆(地下),可容纳师生人数1136人。

以下是大同市平城区第十三小学校新建项目总平面布置图及控规:

平面布置图

日照平面等时线图

控制性详细规划图

项目地理位置
以上就是平城区第十三小学新建项目的具体情况啦,待校区建成后,将有效缓解东信区域教育资源紧缺的现状,满足周边小区居民对优质教育的需求。0352房网将会持续播报相关建设情况,敬请关注!