大同市南城墙南侧新建“水街”项目 快来看看
发布时间:2022-03-11 来源:0352房网 编辑:李亚婷
手机看文章
摘要:据相关网站公告内容,大同市南城墙南侧(东南角)地块“水街”(园区部分)建设规划许可新鲜出炉,详情如下:

规划许可

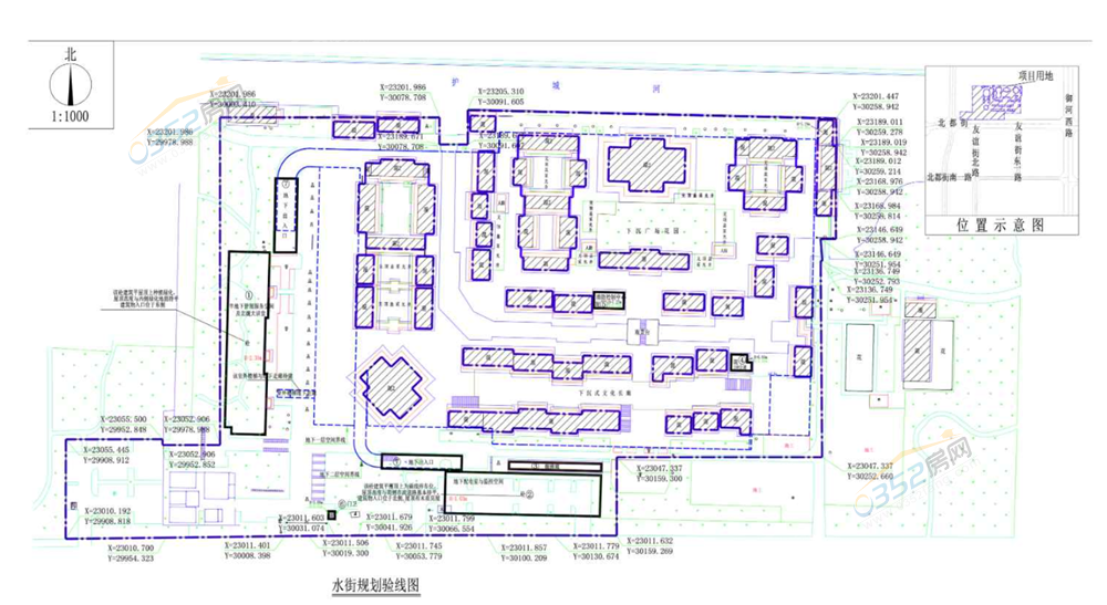
项目总平面图
项目名称:大同市南城墙南侧(东南角)地块“水街”(园区部分)
建设单位:大同市园林绿化中心
设计单位:大同市规划设计研究总院有限责任公司
项目位置:北都街北侧
规划用地:42783㎡
建筑面积:38696㎡
容积率:0.08
建筑密度:7.8%
绿地率:28%
为加强建设工程的监督管理,维护社会公众利益,实施阳光规划。相据城乡规划法律法规的有关规定,现将拟批准建设的《大同市南城墙南侧)东南角)地块“水街”(园区部分)》规划审批情况予以公示,如有不同意见,请在七个工作日内向我局反映。
规划监督电话:7939399/7962060
上午:9:00-12:00下午13:00-17:00
公示时间:2022年3月11日至2022年3月21日
以上就是小编为大家带来的大同市南城墙南侧(东南角)地块“水街”(园区部分)建设规划许可的全部内容,水街项目的建成将为大同市民及外来游客带来更加美好的游赏体验,让我们共同期待吧~