手机看文章
摘要:据相关网站公告,大同永泰南路新增城建设施,老干部教育活动中心建设选址公示,详情整理如下。
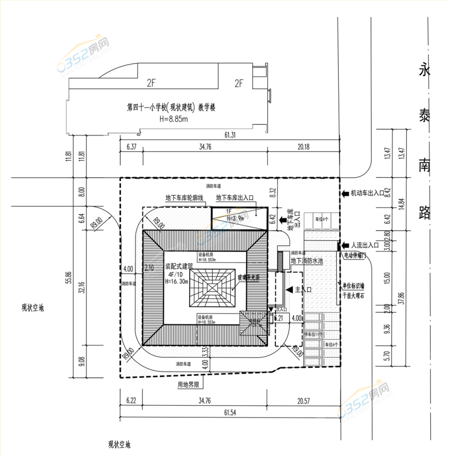
建设项目规划许可公示牌
同审规公示字2022034号

项目名称:大同市平城区老干部教育活动项目
建设单位:中共大同市平城区委老干部局
设计单位:中外建工程设计及顾问有限公司
项目地址:大同市永泰南路西侧,南邻永泰大厦,北邻四十一校

规划总平面布置图

日照分析图

效果图
规划用地面积:3341.5平米
总建筑面积:5898.51平米
地上建筑面积4373.34平米
地下建筑面积1525.17平米
容积率:1.309
建筑密度:34.94%
停车位:44辆
绿地率:20.03%

实景图
为加强建设工程的监督管理,维护社会公众利益,根据城乡规划法律法规的有关规定,现将拟批准的“大同市平城区老干部教育活动项目”规划审批情况予以公示,如有不同意见,请于7个工作日及时向我局反映。
规划监督电话:7939399/7982060
上午 9:00-12:00,下午13:00-17:00
公示时间:2022年6月23日-7月1日
大同市行政审批服务管理局
项目建设面积以审批的总平面图为准
以上就是本次公示的全部内容了,室内活动建筑的增设,为多数有需求的老人们提供了冬暖夏凉的活动场地,据小编实景勘察发现,该项目正在做内部的二次结构,预计将在今年完成大部分建设。更多大同城建规划信息,感兴趣的网友可以前往“城建规划”分页查看。