新建大同市第四人民医院 建设规划和效果图已出
发布时间:2022-09-19 来源:大同市规划和自然资源局 编辑:RUI
手机看文章
摘要:大同市将新建第四人民医院,建设项目规划许可已公示,项目规划效果图已展示,具体情况来一睹为快吧!
项目名称:大同市第四人民医院(传染病医院)项目
建设单位:大同市第四人民医院
设计单位:中国中元国际工程有限公司
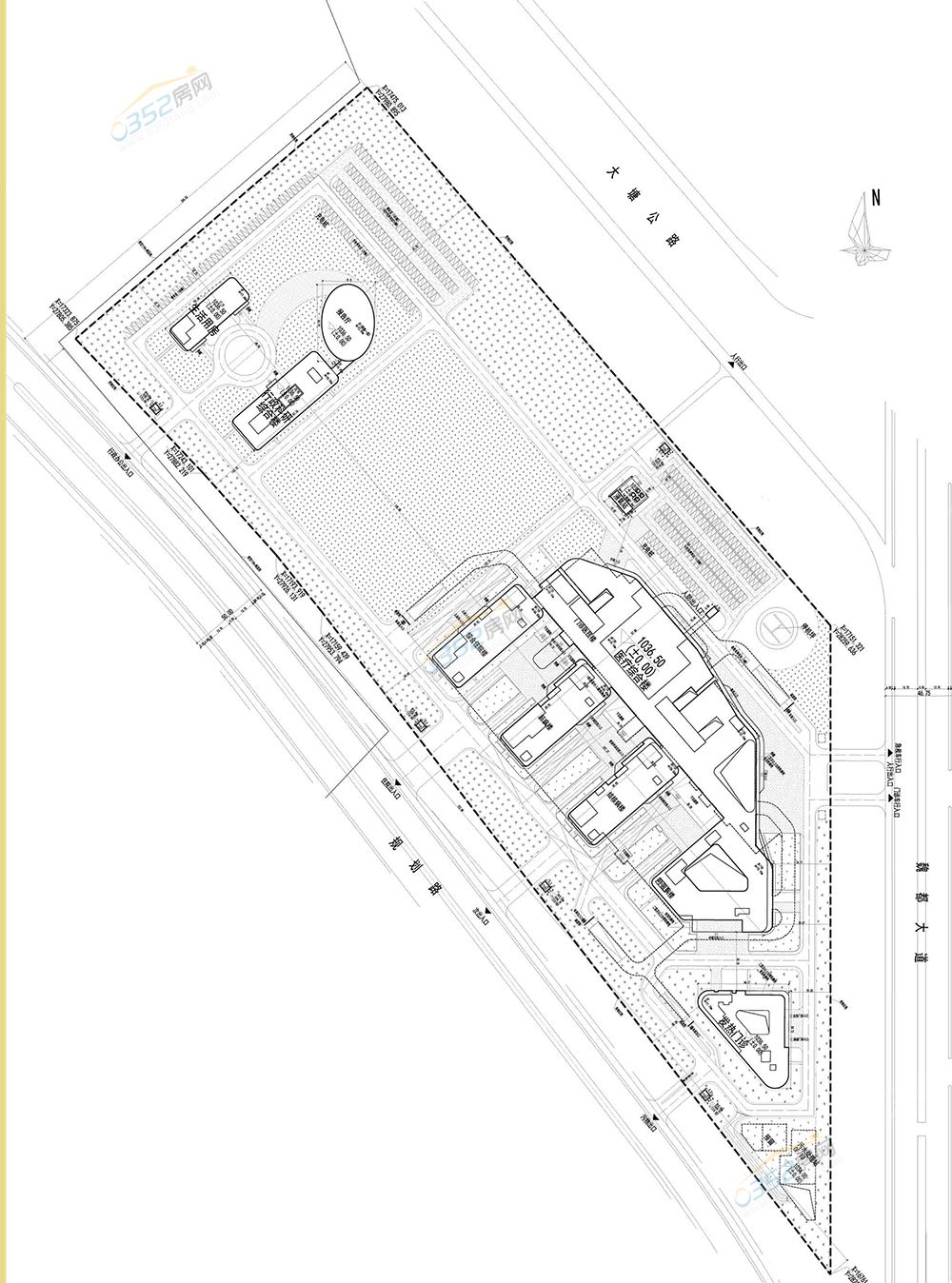
项目位置:大同市大塘公路西南侧、魏都大道西侧

规划图

平面布置图
规划总用地:133227㎡
总建筑面积:132152㎡
地上建筑面积:93090㎡
地下建筑面积:39062㎡
建筑密度:17%
容积率:0.7
绿地率:38%
总停车位:936个
地上停车位:312个
地下停车位:624个
床位数:800床


效果图

位置图
大同市第四人民医院的新建,将更好的防控疫情和应对突发公共卫生事件,完善城市医疗配套设施,保障人民群众的身体健康和生命安全。