手机看文章
摘要:据相关网站公告,大同多处城建规划已批复,含云州区职教城、御河湿地公园商业等重点项目,详情整理如下。
关于《大同市御河十里河交汇处西北侧片区控制性详细规划》等控规批复的公告
《大同市御河十里河交汇处西北侧片区控制性详细规划》等5个控规经大同市人民政府批复同意,现公告如下:
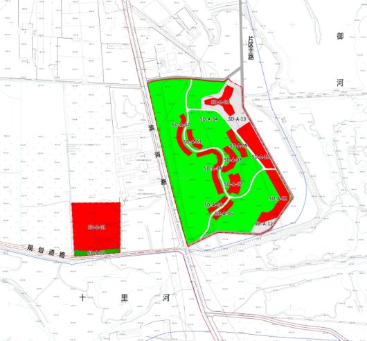
一、《大同市御河十里河交汇处西北侧片区控制性详细规划》

控制性详细规划

主要地块控制指标
该控规于2022年10月8日经大同市人民政府批准同意(同政函【2022】136号)。
公示相关链接:新建公园商业广场 大同御河十里河交汇片区发展
二、《大同市中心城区YG-07单元P街坊02和07地块控制性详细规划用地调整》

控制性详细规划

主要地块控制指标
该控规于2022年10月8日经大同市人民政府批准同意(同政函【2022】136号)。
公示相关链接:新增公园绿地、文化用地 大同有地块控规调整
三、《大同市中心城区YG-02单元B街坊01、02地块控制性详细规划用地调整》

控制性详细规划

主要地块控制指标
该控规于2022年10月8日经大同市人民政府批准同意(同政函【2022】136号)。

规划原公示
四、《大同市中心城区YX-04单元H-07、H-08地块控制性详细规划》

控制性详细规划

主要地块控制指标
该控规于2022年10月8日经大同市人民政府批准同意(同政函【2022】136号)。
公示相关链接:约40800㎡!大同滨河路与御河间新增公园绿地
五、《大同市中心城区YD-13单元B街坊01至06地块控制性详细规划》

控制性详细规划

主要地块控制指标表
该控规于2022年10月8日经大同市人民政府批准同意(同政函【2022】136号)。
公示相关链接:多宗地块控规调整!大同云州区将创建职教城