御东新区新建两所小学 项目建设规划许可已公示
发布时间:2024-06-11 来源:大同政府网 编辑:栗子
手机看文章
摘要:为了满足御东片区周边居民适龄儿童的入学需求以及解决入学难的问题,御东新区规划建设两所小学,现项目建设规划许可已公示,具体情况来一睹为快吧!
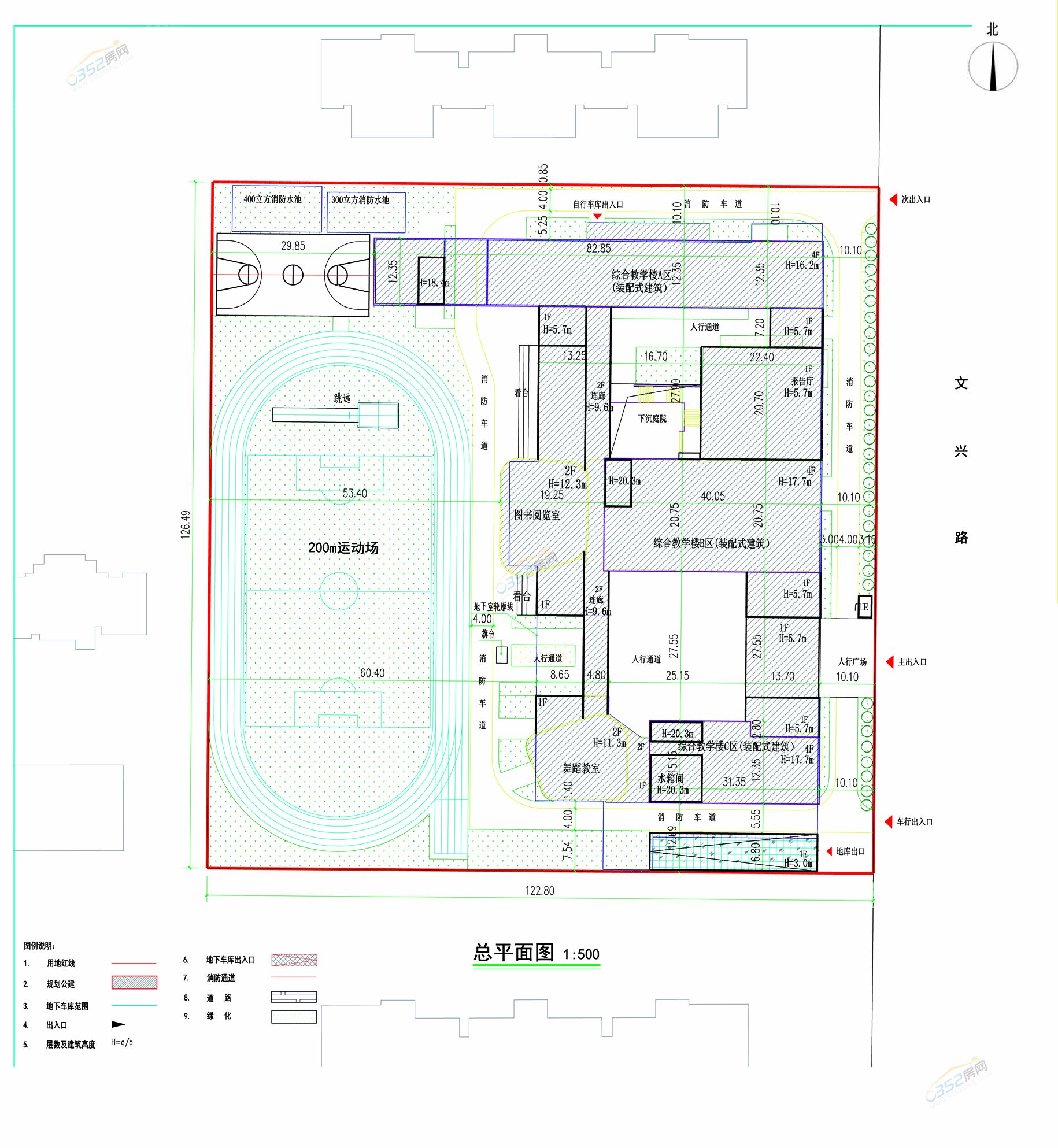
项目名称:新建规划小学3建设项目
建设单位:大同市教育局
设计单位:大同市建筑设计研究院集团有限公司
项目位置:文兴路西侧
规划总用地:15533.0平方米
总建筑面积:18086.42平方米
地上建筑面积:12357.15平方米
地下建筑面积:5729.27平方米
地下计容面积:995.42平方米
建筑密度:27.55%
容积率:0.86
绿地率:35%
总停车位:51辆
轨制:6轨

平面图


效果图
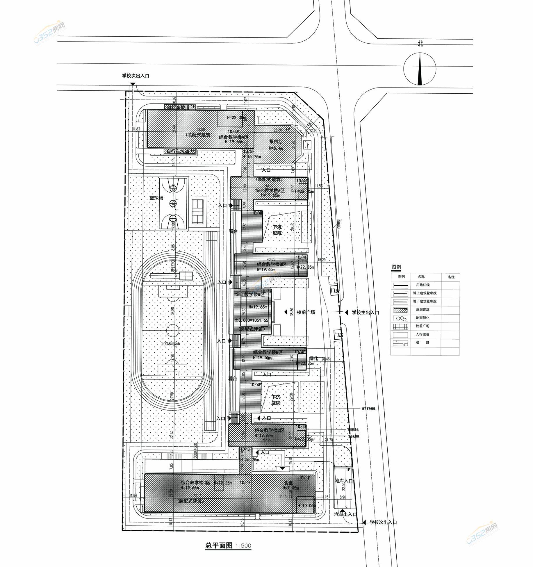
项目名称:新建规划小学4建设项目
建设单位:大同市教育局
设计单位:大同市建筑设计研究院集团有限公司
项目位置:二中集团校北侧
规划总用地:28814平方米
总建筑面积:36065.98平方米
地上建筑面积:25487.21平方米
地下建筑面积:10578.77平方米
建筑密度:26.30%
容积率:0.88
绿地率:35.0%
总停车位:103辆
规制:12规

平面图


效果图
随着大同御东新区楼盘交付数量增多,各小区适龄入学儿童数量增多,两所规划小学的建设,将有效缓解适龄儿童入园难的难题,完善御东新区教育配套。
关于更多大同城建规划的信息,0352房网将持续播报,敬请关注!