新建迎宾街道社区服务和文化活动中心 规划出炉
发布时间:2024-09-21 来源:大同市规划和自然资源局 编辑:栗子
手机看文章
摘要:新建大同市平城区迎宾街道社区服务和文化活动中心,现建设项目规划许可已公示,效果图展示,具体情况如下。
大同市平城区迎宾街道社区服务和文化活动中心
设计单位:大同市规划设计研究总院有限责任公司
项目位置:大同市平城区文昌街南侧
规划主要技术指标
建设用地面积:3173平方米
总建筑面积:3873.24平方米
地上建筑面积:2344.97平方米
地下建筑面积:1528.27平方米
容积率:0.74
建筑密度:43.9%
地上非机动停车位:24辆
地下停车位:44辆
绿地率:6.0%%

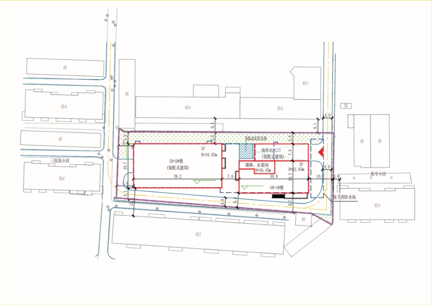
平面布置图


效果图
以上就是大同市平城区迎宾街道社区服务和文化活动中心的项目规划图了。该项目的建设,将为社区居民提供丰富的文体娱乐活动,也将提供休闲空间。