手机看文章

您的位置: 0352房网 > 城建规划 > 占地17568平米 大同经开区建设智慧能源中心项目

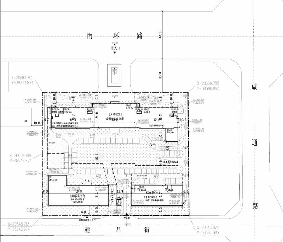
占地17568平米 大同经开区建设智慧能源中心项目

发布时间:2025-01-18  来源:大同政府网  编辑:0352房网

摘要:占地17568平米,大同经开区建设智慧能源中心项目,总平面布置图已公示,具体如下。

 

       项目名称:“智慧能源中心项目”

       建设单位:大同市开发区云州电力有限公司

       设计单位:大同市华青建筑设计有限责任公司

       经济技术指标

       建设用地面积:17568平方米

       总建筑面积:34012.49平方米

       容积率:1.477

       建筑系数:29.95%

       绿地率:35.1%

 

 image.png

平面布置图

 

       以上就是大同市经开区“智慧能源中心”建设项目公示。


读完这篇文章后,您心情如何?

网友参与评论
 
条评论
表情
点击加载更多
更多>>热门楼盘
  • 楼盘
  • 区域
  • 均价
Copyright © 2010-2019 0352fang.com. Powered by 0352房网 大同市触点网络科技有限公司
客服热线:0352-7915556   业务合作:0352-7915557   客服QQ:43201601   E-mail:fang@0352fang.com   晋ICP备13007642号-8