市区迎宾佳苑住宅小区建设项目规划许可公示
发布时间:2019-05-24 来源:0352房网 编辑:谢明亮
手机看文章
永泰学府(迎宾佳苑)预售许可证信息:(2020)晋商房预售同字第21号
本页面的预售许可证信息为当前信息发布时所展示,仅供参考。最新信息请前往楼盘主页查看。
摘要:市区又有新楼盘了,迎宾佳苑住宅小区建设项目规划许可公示了,快来了解一下吧!
咨询电话:400 876 0352 转 0000

项目公示
项目名称:迎宾佳苑住宅小区建设项目
设计单位:大同市规划设计院
项目位置:迎宾街西侧
占地面积:62801㎡
建筑面积:273577㎡
建筑密度:26.3%
容积率:3.47
绿地率:30.1%
停车位:2180
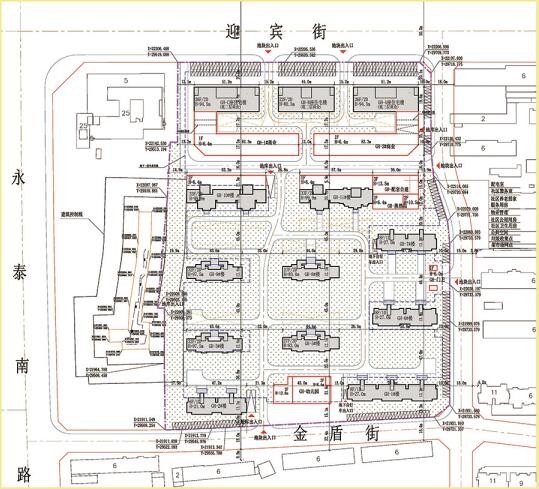
以下是迎宾佳苑住宅项目规划总平面布置图和日照平面等时线图:

项目规划总平面布置图

日照平面等时线图
以上就是迎宾佳苑住宅小区的所有内容,更多楼盘信息小编将会持续报道,敬请关注0352房网!