手机看文章
华鸿·东方家园二期预售许可证信息:(2022)晋商房预售同字第40号
本页面的预售许可证信息为当前信息发布时所展示,仅供参考。最新信息请前往楼盘主页查看。
摘要:人生的旅途中,喧嚣与忙碌交织不停,事业不能诠释生活的全部意义,唯有家,才能衡量生活的质量。
咨询电话:400 876 0352 转 0294
从二人世界到三代同堂,方寸之间恰到好处的布局,才能承载着家庭的朝朝暮暮,东方家园二期建面约138㎡舒适三居,小细节勾勒出生活的美感,不同生活时刻激发的小惊喜,让你邂逅品质生活的美好境遇。

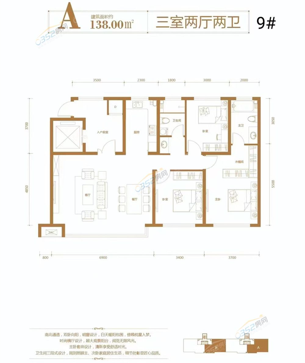
户型图
生活的舒适度源于对空间的掌控,好的户型空间理应动静分区,既能为嬉戏娱乐提供空间,也能保护深思独处时的宁静。每日被繁华所包围,闲暇的时刻更向往温馨的氛围,充分利用空间,让东方家园二期每一处细节都暗藏惊喜,才能有更加舒适的生活体验。

示意图(图源网络)
东方家园二期建面约138㎡三室两厅两卫,精心规划动静分区的惬意空间,将喧闹的社交会客区与静谧的生活区有效分隔,从细节处点缀生活。
亲朋好友把酒言欢,享受清风过堂的舒适,快乐的气氛传遍整个家中。餐客厅一体化,在南北通透的格局下,二者兼具明亮与开阔,小空间大舒适,打造独具一格的空间感,使户型利用率更高。

示意图(图源网络)
东方家园在空间尺度感上匠心耕耘,建面约138㎡户型大开间的客厅与餐厅相通,阳台、客厅、餐厅相连,无限延伸视觉效果。
拥有属于自己的私密空间,是生活品质的小确幸,精致的空间结构,铸就品质生活之家。合理布局的空间,更能轻松实现一家人的舒适梦想,主卧套间设计,私享独立卫浴,让主人能有专属空间,享私密优雅生活。

示意图(图源网络)
东方家园二期最近工程进度:目前8号楼现已建至13层,9号楼现已建至12层,10号楼现已建至6层,东方家园施工团队执着于建筑细节的严苛品控,旨在为将好房子按时按质交付,将匠人心血沉淀于砖瓦与草木之间,只为给您呈现出理想中的家!

实景图
东方家园二期建面约138㎡户型舒适三居,用细节呵护家庭成长,售楼地址:大同市南环路方特东东方家园接待中心,诚邀您来品鉴!