市区紫御府住宅小区 建设项目规划许可公示!
发布时间:2019-06-15 来源:0352房网 编辑:谢明亮
手机看文章
枫林逸景紫御府预售许可证信息:(2021)晋商房预售同字第22号
本页面的预售许可证信息为当前信息发布时所展示,仅供参考。最新信息请前往楼盘主页查看。
摘要:大同市房子村城市棚户区改造项目紫御府住宅小区建设项目规划许可公示了,快来了解一下吧!

项目名称:紫御府住宅小区建设项目
设计单位:大同市昊泰建筑设计有限公司
项目位置:大同市南环西路北侧
占地面积:54852.01㎡
建筑面积:197768.75㎡
建筑密度:20.57%
容积率:2.964
绿地率:30.5%
停车位:1220
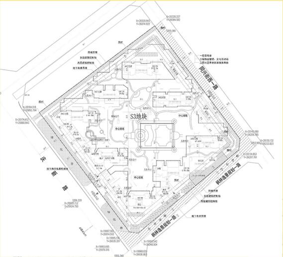
以下是紫御府住宅项目规划总平面布置图和日照平面等时线图:

紫御府项目规划总平面布置图

紫御府日照平面等时线图