大同市东方家园住宅 建设项目规划许可公示!
发布时间:2019-08-28 来源:大同市规划和自然资源局 编辑:xml
手机看文章
东方家园预售许可证信息:一期:(2020)晋商房预售同字第09号
本页面的预售许可证信息为当前信息发布时所展示,仅供参考。最新信息请前往楼盘主页查看。
摘要:大同市东方家园住宅小区建设项目规划许可进行公示了!大同御东新区又新增一楼盘,快来了解一下吧!

项目名称:东方家园
建设单位:大同市华鸿置地有限公司
项目位置:大同市南环路南侧、文嬴湖南路东侧
用地面积:35557.91㎡
建筑面积:117635㎡
建筑密度:13.75%
容积率:2.493
绿地率:35%
停车位:704辆
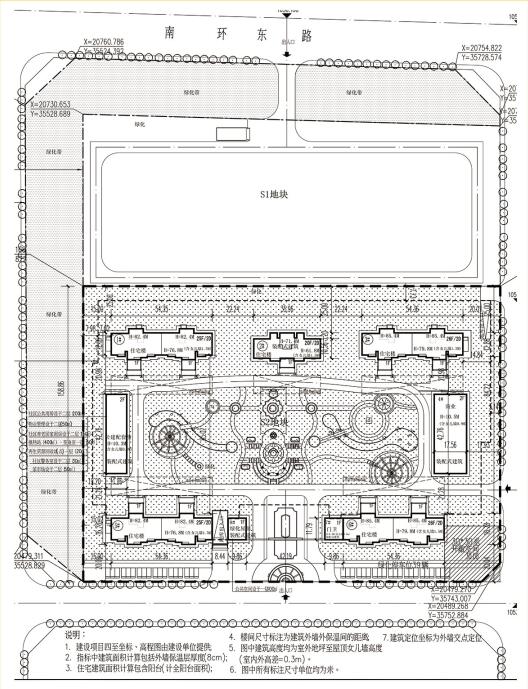
以下是东方家园建设项目总平面布置图、日照平面等时线图:

项目总平面布置图

日照平面等时线图

项目位置图
从项目总平面布置图上可以看出,东方家园位于大同市南环路南侧、文嬴湖南路东侧,共建设5栋楼。更多楼盘信息我们会及时播报,敬请关注0352房网!