大同市悦城丽景住宅C区建设项目规划许可公示
发布时间:2019-12-11 来源:大同市规划和自然资源局 编辑:李亚婷
手机看文章
摘要:大同市悦城丽景住宅小区C区建设项目规划许可公示啦!快跟小编一起来了解一下吧!
项目名称:悦城丽景C区
设计单位:大同市规划设计院
项目位置:开源街与永和路交汇处东南角
用地面积:59044.37㎡
建筑面积:204944㎡
建筑密度:22.6%
绿地率:35.1%
停车位:1380个
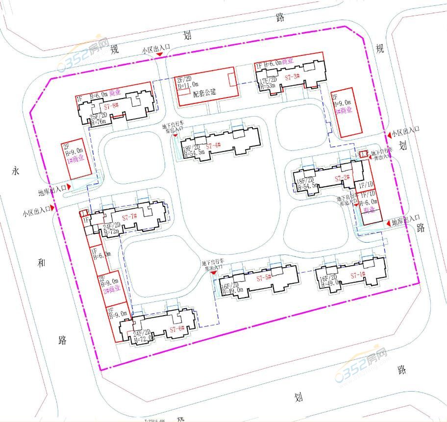
以下是悦城丽景C区建设项目总平面布置图、日照平面等图:

项目总平面布置图

日照平面等时线图

日照平面等时线图
从项目总平面布置图上可以看出,悦城丽景C区位于开源街与永和路交汇处东南角,共建设8栋楼。更多楼盘信息我们会及时播报,敬请关注0352房网!