大同新增楼盘—恒居御华苑 项目建设规划已出
发布时间:2021-03-08 来源:0352房网 编辑:RUI
手机看文章
恒居御河上境(恒居御华苑)预售许可证信息:(2022)晋商房预售同字第54号
本页面的预售许可证信息为当前信息发布时所展示,仅供参考。最新信息请前往楼盘主页查看。
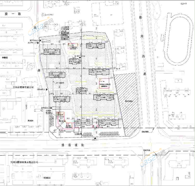
摘要:大同平城区新增楼盘—恒居御华苑,项目位于大同市操场城街与御河西路交汇处西北角,由山西恒居房地产开发有限公司开发建设。目前恒居御华苑项目建设规划已出炉,快来了解一下吧!
咨询电话:400 876 0352 转 0000

项目建设规划
项目名称:恒居御华苑
开发商:山西恒居房地产开发有限公司开发建设
项目位置:大同市操场城街与御河西路交汇处西北角
占地面积:48846㎡
建筑面积:164337㎡
容积率:2.49
绿化率:35%
总停车位:917

项目位置图

总平面布置图