[太和铂悦城]建设项目规划许可公示现已出炉
发布时间:2021-07-21 来源:0352房网 编辑:郑倩
手机看文章
铂悦城预售许可证信息:(2022)晋商房预售同字第24号
本页面的预售许可证信息为当前信息发布时所展示,仅供参考。最新信息请前往楼盘主页查看。
摘要:近日大同御东北侧住宅项目——太和铂悦城建设项目规划许可公示出炉,更多信息得以释放,详情如下。
咨询电话:400 876 0352 转 0235

项目规划公示牌
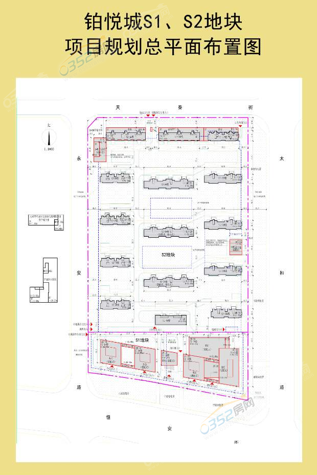
项目名称:铂悦城S1、S2地块建设项目
项目位置:恒安街北侧、太和路西侧
S2地块占地面积:82968.54平方米
S2地块建筑面积:205246.44平方米
S2地块容积率:1.59
S2地块绿化率:35.1%
S2地块总停车位:1302辆

项目总平面布置图

项目位置图
以上就是太和铂悦城的项目规划建设了,我们可以从此次公示中看到,S2地块容积率为1.59,目测太和铂悦城将以小高层为主要建筑类型,而作为商业用地的S1地块,目测也将建造太和铂悦城的配套临街商业。
据小编近日实地考察发现,截止至7月20日,太和铂悦城围挡已围土地平整中,正待下一步动作。更多太和铂悦城相关信息,敬请关注0352房网!