大同新盘碧水云天·御源府 项目规划公示已出
发布时间:2022-02-21 来源:0352房网 编辑:郑倩
手机看文章
碧水云天·御源府预售许可证信息:(2022)晋商房预售同字第15号
本页面的预售许可证信息为当前信息发布时所展示,仅供参考。最新信息请前往楼盘主页查看。
摘要:据相关网站公告,碧水云天御源府项目规划已出,详细情况整理如下。
咨询电话:400 876 0352 转 0263
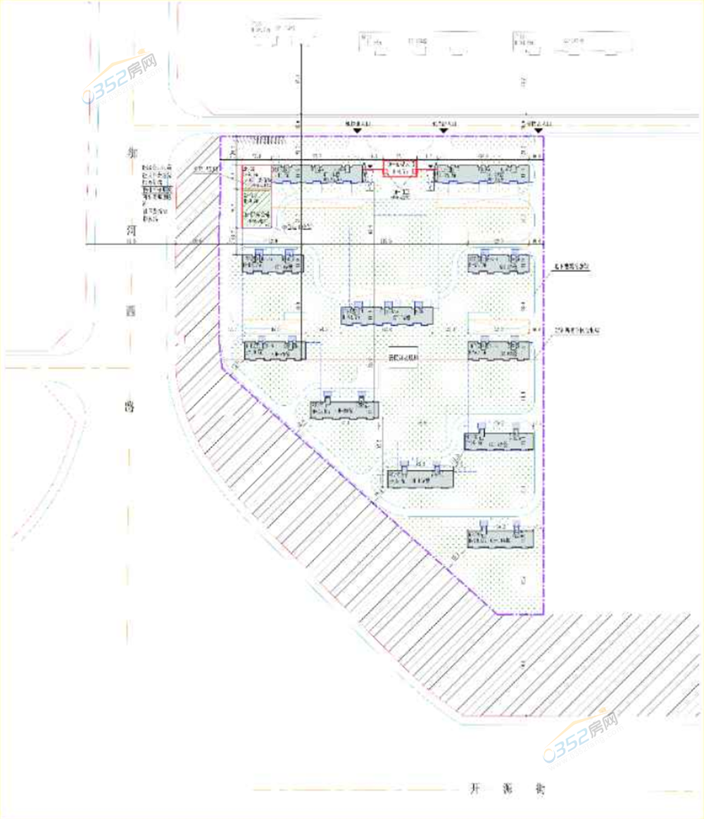
据小编整理,碧水云天御源府项目详细规划如下:

公示图

总平面布置图

日照平面等时线图

项目规划指标
碧水云天·御源府位于大同市御河西路东侧,由大同市华瑞集团进行开发建设,共建11栋住宅楼,以小高层与洋房为主,容积率为1.49,囊括建面约125-143㎡精工户型,现沙盘与户型图均已到位售楼部。更多楼盘信息,敬请关注0352房网!