大同文瀛湖以南 〖九如瀛湖〗建设规划公示!
发布时间:2022-08-02 来源:0352房网 编辑:郑倩
手机看文章
九如瀛湖预售许可证信息:(2024)晋商房预售同字第07号
本页面的预售许可证信息为当前信息发布时所展示,仅供参考。最新信息请前往楼盘主页查看。
摘要:大同御东新盘——九如瀛湖项目建设规划公示,预计将在文瀛湖以南建设改善型小高层,详情如下。
咨询电话:400 876 0352 转 0349

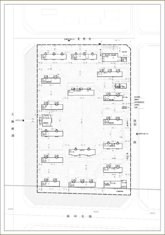
项目名称:九如瀛湖项目
建设单位:大同市朗诗置业有限公司
设计单位:北京市建筑设计研究院有限公司
项目位置:文瀛南路东侧、南环东路北侧

总平面布置图
总规划面积:106188㎡
总建筑面积:202209.36㎡
地上建筑面积:144061.26㎡
地下建筑面积:58148.1㎡
建筑密度:18%
容积率:1.79
绿地率:35%
总停车位:1084辆

鸟瞰图

效果图

区位图
从以上公示信息我们可以看到,九如瀛湖项目的定位为环湖改善小高层,目前该项目未开工建设,也暂未有售楼部的消息,0352房网将持续关注该盘实况并及时更新,敬请关注!