建设11栋楼!大同新盘—恒安壹号院规划已出
发布时间:2023-03-24 来源:0352房网 编辑:RUI
手机看文章
摘要:大同新盘——恒安壹号院,项目建设规划已公示,由S1居住地块和S2商业地块组成,规划建设11栋住宅楼,3栋商业楼!
咨询电话:400 876 0352 转 0000
项目名称:恒安壹号院项目
建设单位:大同恒安祥置业有限公司
设计单位:国建工程设计有限公司
项目位置:大同经济技术开发区现代服务产业园区

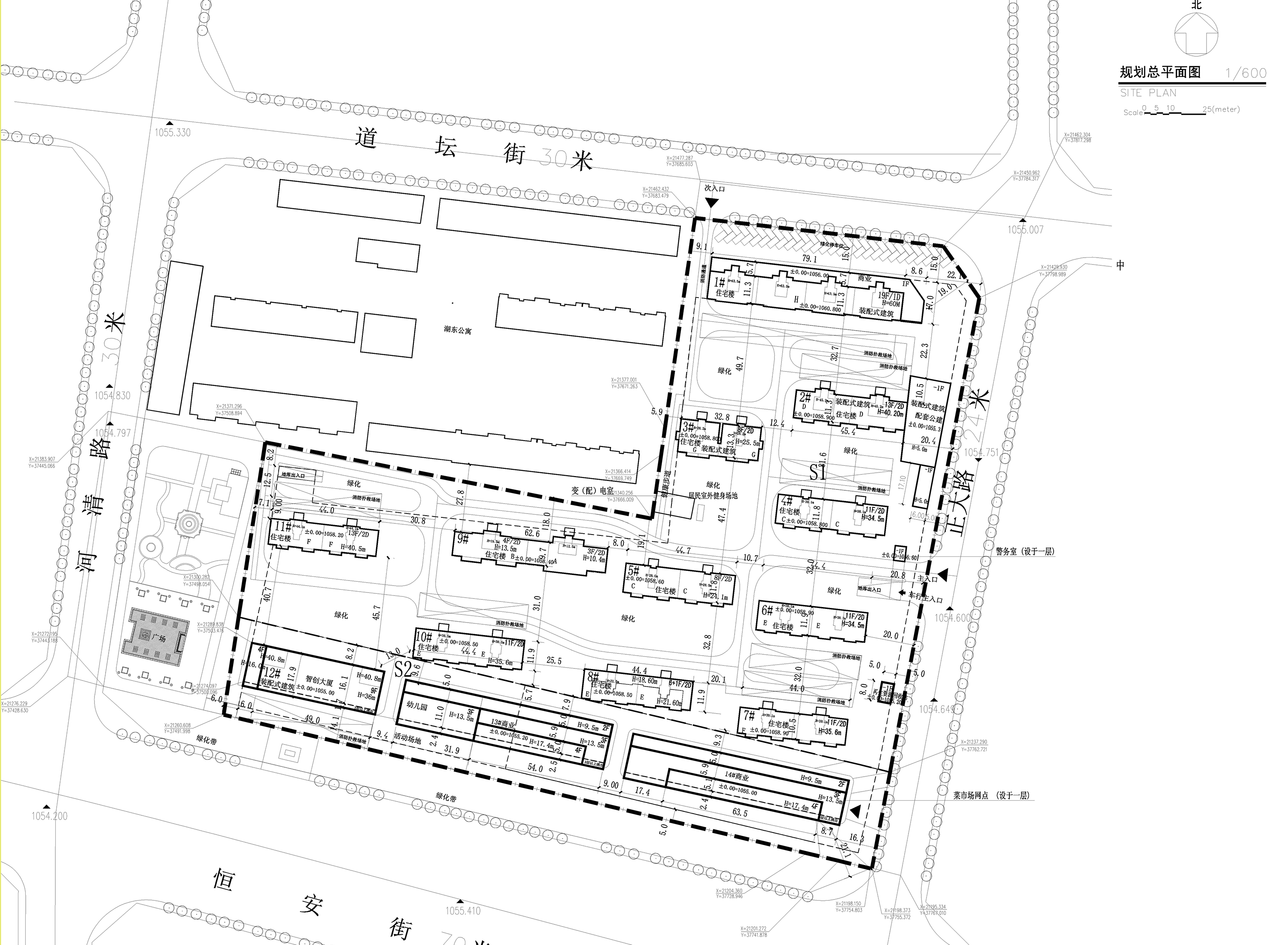
规划图
用地面积:S1:35795㎡,S2:10849㎡
建筑面积:S1:99964㎡,S2:26121㎡
建筑密度:S1:20%,S2:34.1%
容 积 率:S1:1.99,S2:1.99
绿 地 率:S1:35%,S2:20%
停 车 位:S1:535个,S2:171个

平面布置图

位置图
恒安壹号院位于大同市恒安街与河清路交汇处东北角,由大同恒安祥置业公司开发,目前仅公示了建设规划许可公示,其余信息尚未释放。0352房网将持续跟踪并播报恒安壹号院相关动态,敬请关注!