手机看文章
摘要:近两年来,一些着急买房的购房者好像突然销声匿迹了,很多买房人表示大同楼市这两年让人琢磨不透,在这种形势下,大家都想选择那些有品质的好房子,这说明大同人买房逻辑开始变了。
今天,小编就从地段、需求、产品三个维度,深扒一下大同人置业逻辑。
一、看地段
在大同,买房选地段,最重要的其实就是挑对位置!这说起来简单,但操作起来确实也有一定的技术难度。我们在挑位置的时候,首推的逻辑是:
优先选择距离自己工作、生活圈近的位置,再去考虑配套是否成熟,或是这个地段有没有发展潜力。为什么要这么选?房子,总归还是拿来住的。哪个区域距离你稳定工作的地方更近,那么哪个地方就更适合你。试想一下,如果你上班的地方在云冈区,家却住在御东,无形之中时间成本增加了不少。

大同实景图
如果想买御东,那置业逻辑就可能是这样的:手里资金较为充足,对周边配套氛围有较高要求,看重周边的教育资源。
近几年,大同楼市供不应求状况逐渐被改善,云州区碧桂园·玖珑湾、保利和光尘樾、星玥湾等项目均有房源在售;御东锦瑞和源、四季、太和道等项目在售;市区观城壹号、枫林逸景亲河园、碧桂园凤栖台等项目在售;云冈区阳光·十里河畔、学府华庭、星湖世家·锦园等项目也在销售阶段。
从楼盘供应来看,不同片区均有新楼盘供应或待入市楼盘,不同区域置业者的选择也相对较大。在实际选择过程中,哪个区块置业逻辑与你匹配,基本上你就会有答案了。
二、看需求
论需求,可以分成自住和投资两种,自住又可以分为刚需和改善两类。在“房住不炒”背景下,投资这一需求就不再赘述,我们主要来看看大同购房在自住方面的需求逻辑。
刚需买房逻辑:既然是刚需,那首先要考虑的就是预算,再去看周边的配套和交通等。需要注意的是,部分刚需也会考虑一些周边学校等实际需求,未来可能还有换房需求,这就需要对板块内的学校和价值增长空间有一定的了解和判断。

大同南站实景图
改善买房逻辑:地段、品质和环境,这是改善人群对房子的三大基本要求。这几年在大同,低密、洋房、大平层或叠墅,这些都是改善的置业热点。
改善需求涵盖了周边环境、项目规划、景观、户型、质量、品质、用材、物业服务、口碑等等多个维度,是需要全方位去选择判断的。


园林实景图
之前很多人都在说:大同人买房的逻辑改变了,那么到底变了什么呢?其实就是从刚需到改善的转变。
三、看产品
近年来,大同购房者不再一路追涨,开发商也不再只是一味鼓吹板块未来空间,大家都把目光聚焦到了项目的品质上。为了赢得更多的市场,大同众多房企在户型产品设计上也更加以人为本,以客户的需求为导向研发设计,增加户型产品的适应性、可变性和选择性。
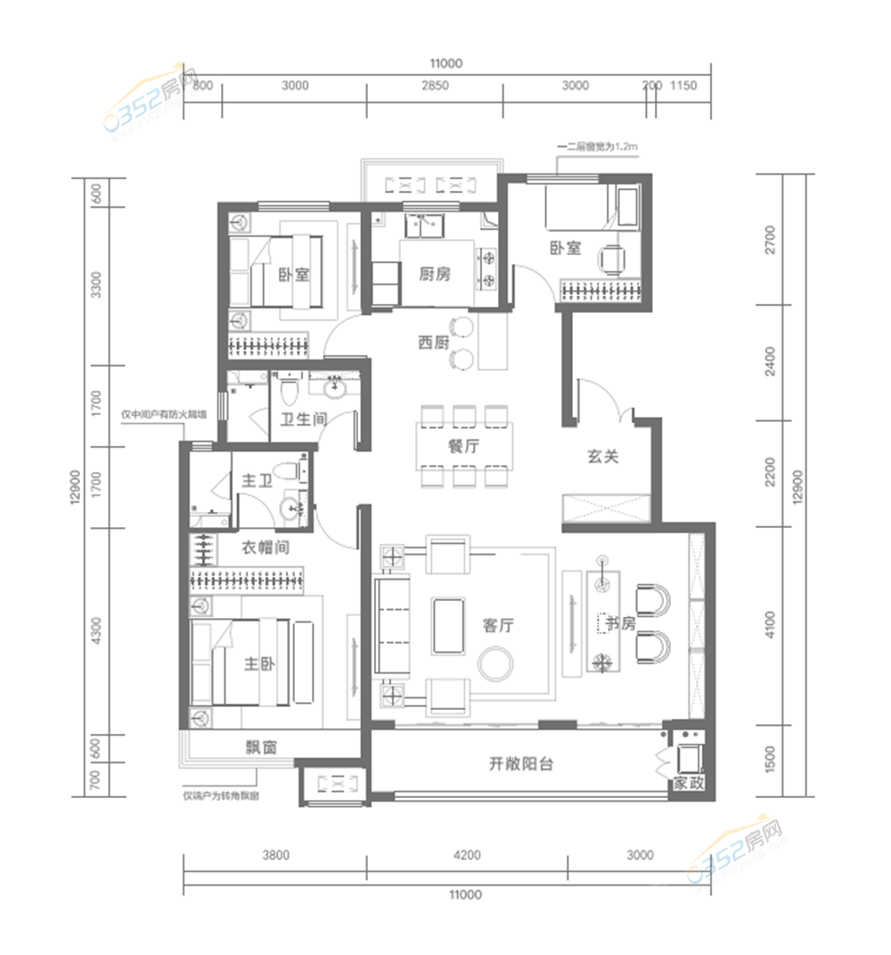
如某楼盘建面约133㎡及以上面积户型均采用了三合一大横厅设计,这在目前的大同楼市中属实不多见,以建面约133㎡户型为例:

建面约133㎡户型图
在这个户型中,我们会惊喜地发现,空间更开阔,独有的客厅、餐厅、书房三合一大厅,给空间更多的可能性,横厅设计可以把走道空间纳入到客厅和餐厅空间中,提高户型的使用率,带来前所未有的生活体验。
整个户型大面宽,短进深,符合我们大同老百姓常说的“户型方正、南北通透、横厅布局”这一标准好户型原则。放眼当今的大同楼市,从开发商品牌到户型结构,只有真正的品质住宅值得买房人放心购买。
最后小编想说,大同楼市一直在变化,买房逻辑也一直在更新,需求不同,买房的关注点当然也不一样。但是,大家都在尽自己最大的能力,给自己一个满意的答复,不跟风,不盲从,清楚自己需要什么才能买到心仪的房子!