御东太和汇城市广场建设项目规划许可公示!
发布时间:2019-08-17 来源:0352房网 编辑:李亚婷
手机看文章
百盛·太和汇城市广场预售许可证信息:(2020)晋商房预售同字第56号
本页面的预售许可证信息为当前信息发布时所展示,仅供参考。最新信息请前往楼盘主页查看。
摘要:大同市太和汇城市广场项目建设项目规划许可公示了,快来了解一下吧!
咨询电话:400 876 0352 转 0000

项目名称:太和汇城市广场建设项目
建设单位:大同市德致远房地产开发有限责任公司
设计单位:大同市规划设计院
项目位置:大同市御东新区太和路与重熙街交汇处东北角
占地面积:36624㎡
建筑面积:189454㎡
建筑密度:45%
容积率:3.95%
绿地率:15%
停车位:1447
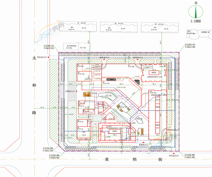
以下是太和汇城市广场项目规划总平面布置图和日照平面等时线图:

太和汇城市广场项目规划总平面布置图
太和汇城市广场日照平面等时线图