御东住宅项目观澜湾 户型已出售楼部已开放!
发布时间:2021-07-05 来源:0352房网 编辑:郑倩
手机看文章
观澜湾预售许可证信息:(2022)晋商房预售同经开区字第1号
本页面的预售许可证信息为当前信息发布时所展示,仅供参考。最新信息请前往楼盘主页查看。
摘要:御东文瀛湖以南住宅项目观澜湾,现户型已出,临时售楼部已开放,快来和小编一起了解一下吧!
咨询电话:400 876 0352 转 0000
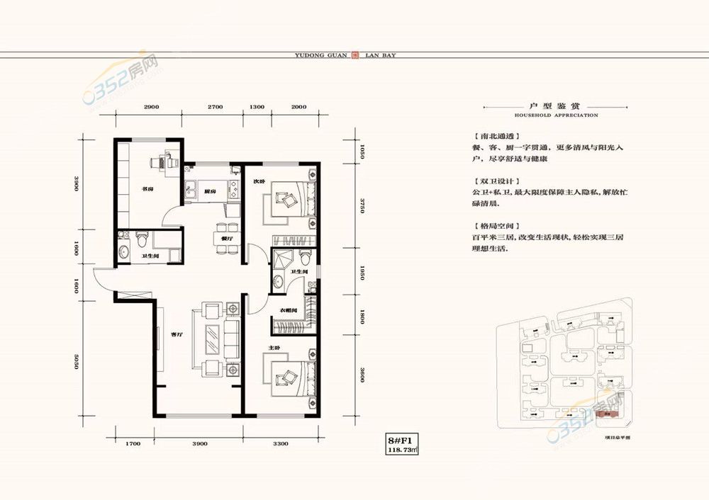
据小编了解,观澜湾临时售楼部已在项目周边设立开放,户型图已到位,以下是部分效果图与户型图:

效果图

户型图
观澜湾位于大同市南环路与柳莺路交汇处东南角,由大同东腾房地产开发有限公司开发建设。项目总占地面积66106.67㎡,总建筑面积185755㎡,绿地率35.1%,容积率2.18。更多楼盘信息,敬请关注0352房网!