手机看文章
碧水云天·新尊府预售许可证信息:(2019)晋商房预售同字第39号
本页面的预售许可证信息为当前信息发布时所展示,仅供参考。最新信息请前往楼盘主页查看。
摘要:随着城市的不断扩张,住宅区的距离越来越小,尤其是在新冠肺炎疫情过后,以花园洋房、小高层为主的低密住宅成为购房者关注的重点。在这样的情况下,低密住宅显得尤为可贵,那么低密住宅都有什么好处呢?
咨询电话:400 876 0352 转 0281
所谓低密,意味着更少的人群、更广阔的空间、更丰富的自然景观,具体体现在数字上就是低容积率,而采光性能好,通透性更佳可能就是对低密住宅最好的解释。而低容积率带来的不仅是人均享受更大面积的绿地,更提高了业主的私密性与安全性,以优美的小区环境,给业主舒适的享受。所以,越是繁华的地段,低容积率的产品也就越为难得。
以品质建筑,铸就舒适家园,碧水云天·御花园与新尊府项目皆以花园洋房、小高层为主要建筑形态,正是当下大同楼市低密度住宅的代表之一。


御花园园林景观


新尊府园林景观
项目甄选多种树木匠心造园,淬炼社区唯美画境,打造绿意浓浓的新中式生态园林。其中小亭、石桥、游廊、水榭、等点缀在绿树葱茏之中,水系发达,或蜿蜒曲折,引人入胜;或大气磅礴,伟岸雄浑,形成一幅幅灵动秀美的美丽画卷。让购房者在赏心悦目的同时,感受天然氧吧带来的清新、惬意之感。


碧水云天·御花园户型图
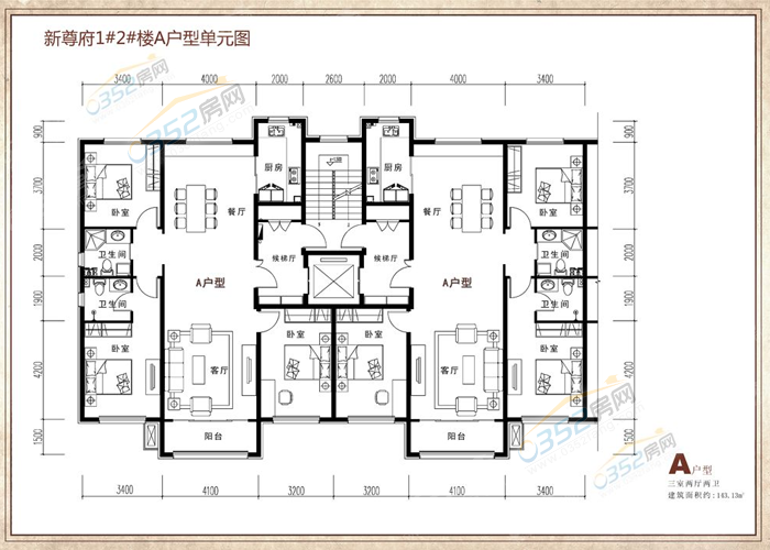
优美的园林景色令业主推窗即拦景,而设计合理的户型结构,则让业主居住在碧水云天的每一分钟,都能尽享舒适空间。御花园与新尊府项目品质出众,一脉传承,户型设计精良,布局动线合理,贴合大同本地购房者的居住习惯,构建南北通透、阳光满室的恬逸空间,更有中西厨结合、入户玄关等多重户型满足不同购房者的置业需求。
与此同时,碧水云天系列楼盘对大同购房者来说并不陌生,多年来埋头深耕,为大同市民们带来了不少品质好盘,御东碧水云天·御河湾、新河湾、御河苑,市区碧水云天·颐园、博雅府等,均受到了购房者与业内人士的一致好评,可见“碧水云天”楼盘的品质可靠,值得信赖。

于生态之间,匠筑低密、健康住宅,致敬大同品质生活,碧水云天·御花园、新尊府项目均已五证齐全,实景现房,让您即买即住,买的放心,住的舒心,感兴趣的朋友们可以前往接待中心进行详细咨询。
新尊府接待中心:大同市御东新区南环东路与太和路交汇处往南800米
御花园接待中心:大同市御东新区南环路与永安路交汇处西北角。