手机看文章
摘要:从2021年6月至今,大同楼市共迎来五个新盘信息释放,分别是西京公馆、文瀛御湖湾、观城府、观澜湾和恒大帝景。0352房网已将这五个新盘信息整理如下,看看你更关注哪个楼盘?
西京公馆
咨询电话:400 876 0352 转 0000
开 发 商:大同市正源置业有限责任公司
用地面积:5908.73㎡
建筑面积:36165.41㎡
停车位:626
项目动态:目前西京公馆仅公示项目建设规划许可,其余楼盘信息尚未释放,售楼部未开放。

项目规划公示牌
文瀛御湖湾
咨询电话:400 876 0352 转 0000
项目位置:大同平城区柳莺路与恒安街交汇处西南角
用地面积:65059㎡
建筑面积:145741㎡
容积率:1.496
绿地率:35%
项目动态:目前文瀛御湖湾仅公示项目建设规划许可,其余楼盘信息尚未释放,暂无售楼部。

项目规划公示牌

位置图
观城府
咨询电话:400 876 0352 转 0000
项目位置:大同市平城街与北苑路交汇处东北角
开 发 商:大同东腾房地产开发有限公司
占地面积:13736㎡
建筑面积:32816㎡
容积率:2.39
绿地率:35%
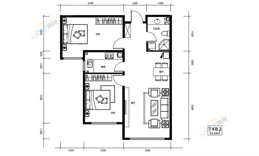
项目动态:观城府共建两栋小高层及一栋商业楼,目前项目效果图及户型图已出炉,售楼部已开放,有意向者可前去咨询。

效果图

户型图
观澜湾
咨询电话:400 876 0352 转 0000
项目位置:大同市南环路与柳莺路交汇处东南角
开 发 商:大同东腾房地产开发有限公司
占地面积:66106.67㎡
建筑面积:185755㎡
容积率:2.18
绿地率:35%
项目动态:观澜湾共建设12栋楼,均为小高层,目前项目效果图及户型图已出炉,临时售楼部已经开放,有意向者可前往售楼部品鉴。

效果图

户型图
咨询电话:400 876 0352 转 0000
项目位置:大同经开区湖东片恒安街北侧
开 发 商:大同东恒房地产开发有限公司
占地面积:109650㎡
建筑面积:297362.14㎡
容积率:2.0
绿地率:35%
项目动态:恒大帝景目前仅公示项目建设规划许可,其余楼盘信息尚未释放。

规划许可公示图
以上就是大同近期释放信息的新盘汇总了,其中观城府位于市区,其余四个楼盘均位于御东新区,并且观澜湾、文瀛御湖湾、恒大帝景都在文瀛湖周边,未来文瀛湖片区将迎来大规模楼盘开发,购房者选择性增多。
关于大同最新楼盘信息,0352房网将持续关注并报道,敬请关注!