手机看文章
摘要:本周0352房网·壹周楼市(2021.7.5.-2021.7.11),从楼市动态、工程进度、城建规划、土地市场等方面,为大家网罗过去一周的大同楼市热点!
一、楼市动态
7月5日,文瀛东郡·雅尚居年中特价房源限时释放。

房源信息

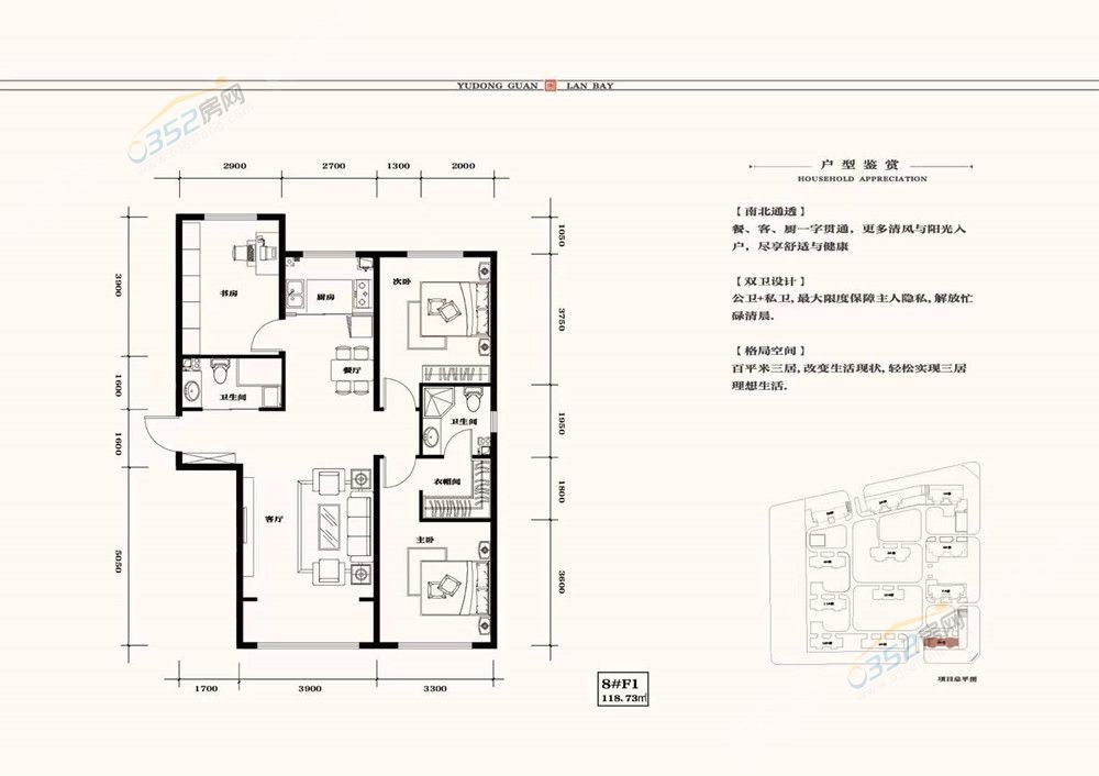
户型图
7月6日,五州帝景7月购房节活动开始。

晚会现场图
二、400来电排行
400电话来电量排名:
文兴首席·竹里
碧桂园·玖珑湾
以上五个楼盘是上周400来电量的前五名楼盘。文兴首席·竹里开盘以来热度不减,网友咨询较多,来电量排行第一;上华琚二期信息即将释放,来电量排行第二;碧桂园·玖珑湾购房福利较多,来电量排行第三;兴云国际·揽御建设正酣,网友较为关注,来电量排行第四;观城壹号位于古城西北隅外,地理位置较好,来电量排行第五。
三、工程进度

实景图
截止至7月9日,吾悦华府二次结构建设中。

实景图
截止至7月9日,凯德世家·幸福城一期楼栋平均建至5层左右。

实景图
四、城建规划
新建大同市第六中学建设项目规划许可公示出炉
内容:新建大同市第六中学项目建设地点为大同市云冈路北侧,规划总用地面积56910平米,总建筑面积51423平米,其中地上建筑面积37908平米,地下建筑面积13515平米。

建设项目规划许可公示
合计约593亩地!大同市云州区多宗地块拟征收
内容:大同市云州区人民政府今日发布多则征地公告,涉及周士庄镇牛家堡村、周士庄村、罗卜村等地,合计约593亩地,以下是具体情况。

拟征收土地详情一览

拟征收土地大概位置(仅供参考)
五、土地市场
合67301万元!大同市七宗地块即将拍卖出让!
内容:经大同市人民政府批准,大同市规划和自然资源局决定拍卖出让位于北环路南侧东苑路西侧地块等七宗国有建设用地使用权,公告如下。

地块出让信息


部分地块大体位置
报名申请时间:2021年7月7日9时至2021年7月26日17时
地点:网上竞价(大同市自然资源局国土资源网上交易系统http://dtzrzyjy.sxzrzyjy.com.cn:7002)
大同市规划和自然资源局国有建设用地使用权拍卖出让公告
同自然资告字[2021]02号
内容:经大同市人民政府批准,大同市规划和自然资源局决定拍卖出让位于永泰街南侧、金盾街北侧地块一宗国有建设用地使用权,公告如下。

地块基本信息
报名申请时间:2021年7月8日9时至2021年7月27日17时
地点:网上竞价(大同市自然资源局国土资源网上交易系统http://dtzrzyjy.sxzrzyjy.com.cn:7002)
六、全国楼市
今年二季度以来中国多数城市房贷利率持续走高。贝壳研究院数据显示,6月份,贝壳研究院监测的72城主流首套房贷利率为5.52%,二套利率为5.77%,比5月分别上浮5个、4个基点;重点城市首套和二套房利率水平距离2019年11月份的高点已经不远。
中国人民银行近日发布的2021年第二季度城镇储户问卷调查报告显示,对于下季度房价,有25.5%的居民预期“上涨”,52.3%的居民预期“基本不变”,10%的居民预期“下降”。
据克而瑞不完全统计,2021年上半年100家典型房企的融资额为6090亿元,同比下降34%,环比下降29%,是2018年以来的最低水平。与此同时,企业融资情况不容乐观,仅有36%的房企融资规模有所增加,规模减少的房企中有约30%企业同比降幅超过50%。